CAD频道
CAD图库
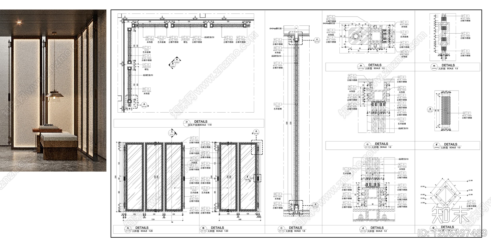
现代轻奢屏风隔断 玻璃屏风 不锈钢屏风 艺术玻璃 屏风隔断 屏风节点 施...
1/
2
Previous
Next
现代轻奢屏风隔断CAD下载
ID: 1206497489
复制
上传作者
XE1982
上传时间
2025-12-05
文件大小
2.85M
设计风格:
--
CAD版本:
CAD2014
包含文件:
CAD
授权
独家
立即下载
收藏
分享
举报
相关推荐
综合
硬装构件图库
屏风隔断
背景墙
地面拼花
开关插座
门
五金管件
窗
装饰线条
壁炉