CAD频道
CAD图库
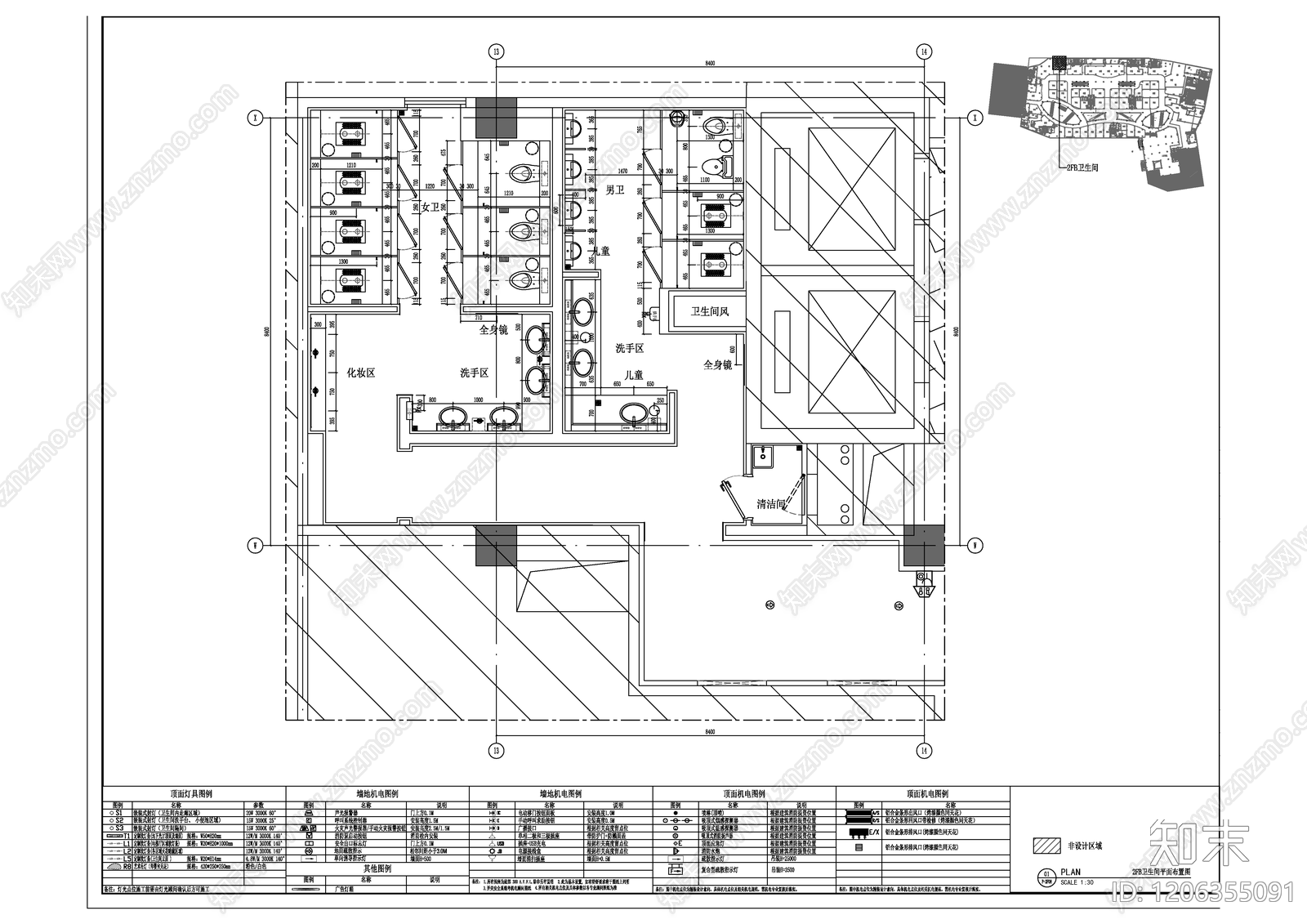
工装平面图 商场卫生间平面图 公共卫生间布局 公共卫生间立面图 施工图
1/
7
Previous
Next
工装平面图CAD下载
ID: 1206355091
复制
上传作者
景观施工图互粉
上传时间
2025-12-03
文件大小
11.22M
设计风格:
--
CAD版本:
CAD2012
包含文件:
CAD
授权
独家
立即下载
收藏
分享
举报
相关推荐
综合
平面图
工装平面图
景观平面图
规划平面图
其他平面图
小区平面图