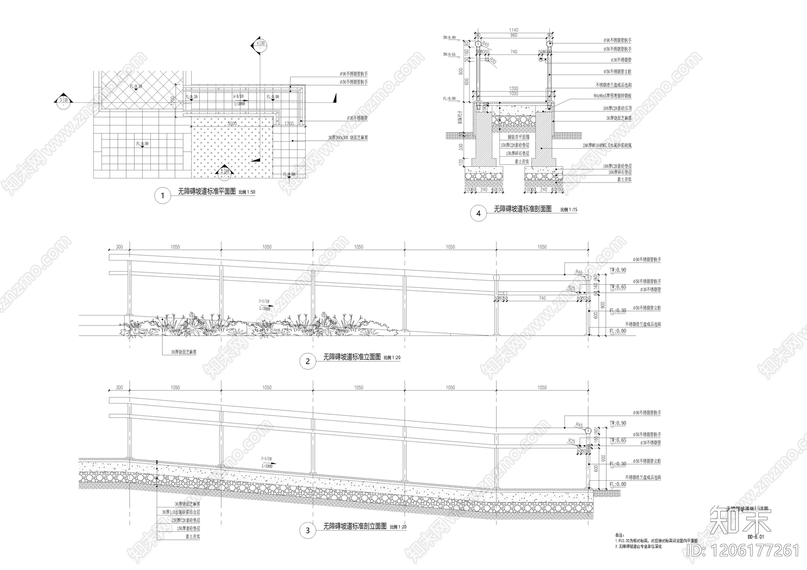
无障碍坡道施工图下载【ID:1206177261】

无障碍坡道CAD下载

ID: 1206177261
复制
上传作者
-小太阳--小太阳-

上传时间2025-11-28

文件大小0.14M

设计风格:--

CAD版本:CAD2014

包含文件:CAD

授权独家

立即下载
收藏
分享
举报
相关推荐
综合
楼梯构件
无障碍坡道
疏散楼梯
室内楼梯
室外楼梯
预制楼梯
钢结构楼梯
旋转楼梯
悬挑楼梯
异形楼梯