CAD频道
CAD图库
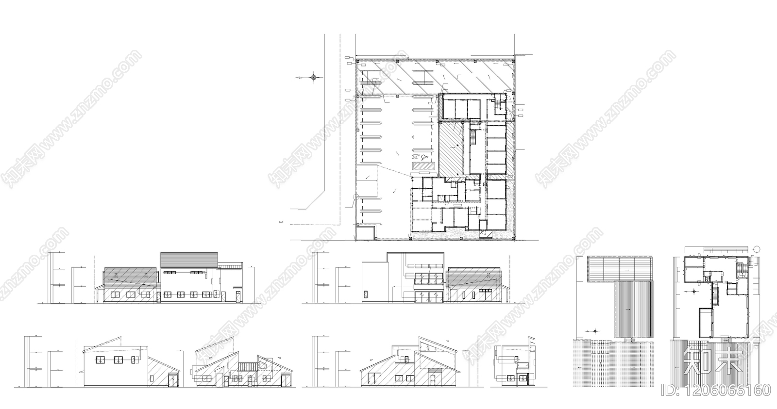
现代医院建筑 别墅建筑立面图纸 疗养院建筑 办公楼平面立面图 施工图
现代医院建筑CAD下载
ID: 1206066160
复制
上传作者
花好月圆
上传时间
2025-11-26
文件大小
0.93M
设计风格:
--
CAD版本:
CAD2008
包含文件:
CAD
授权
普通
立即下载
收藏
分享
举报
相关推荐
综合
公共建筑
医院建筑
会议中心建筑
公厕
行政机构建筑
其他公共建筑
门卫室建筑
停车楼
消防站
集装箱