CAD频道
CAD图库
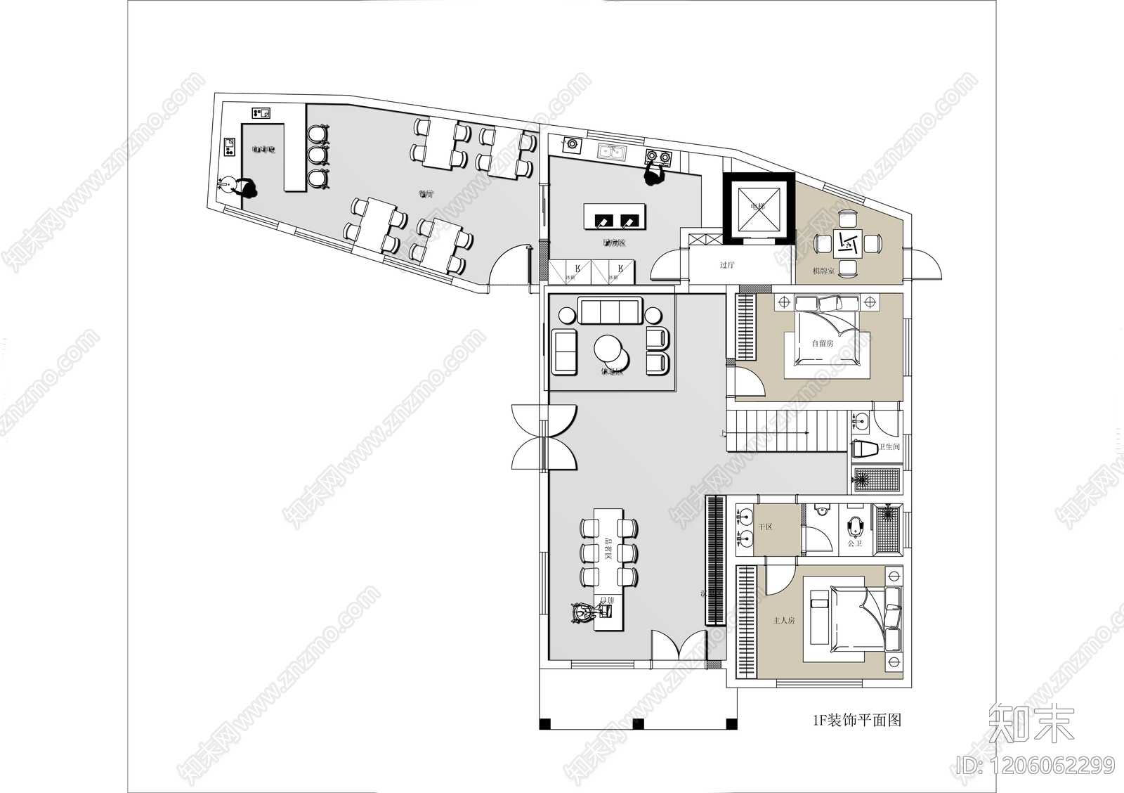
工装平面图 三层民宿 大套房 施工图
1/
3
Previous
Next
工装平面图CAD下载
ID: 1206062299
复制
上传作者
智取怂猫河
上传时间
2025-11-25
文件大小
3.24M
设计风格:
--
CAD版本:
CAD2012
包含文件:
CAD
授权
独家
立即下载
收藏
分享
举报
相关推荐
综合
平面图
工装平面图
景观平面图
规划平面图
其他平面图
小区平面图