CAD频道
CAD图库
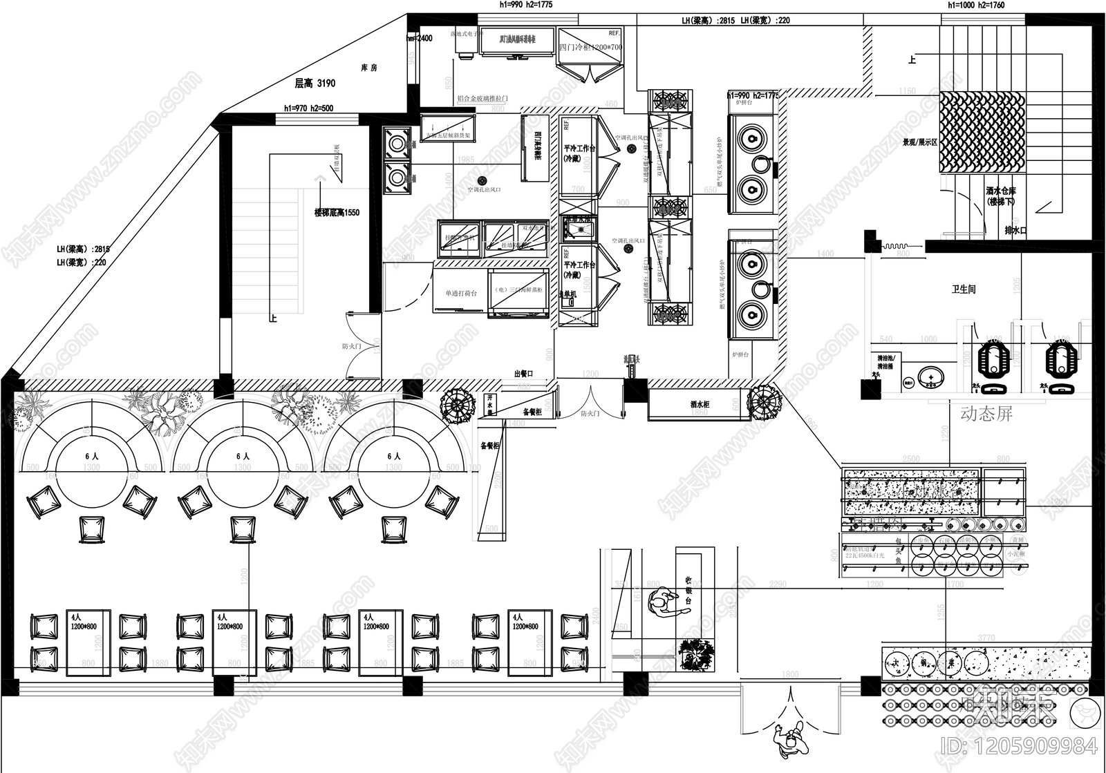
现代侘寂酒楼 农家菜平面布局 土菜馆平面设计图 施工图
1/
2
Previous
Next
现代侘寂酒楼CAD下载
ID: 1205909984
复制
上传作者
小狗你叫啥。。。汪汪
上传时间
2025-11-21
文件大小
0.72M
设计风格:
--
CAD版本:
CAD2020
包含文件:
CAD
授权
独家
立即下载
收藏
分享
举报
相关推荐
综合
平面图
工装平面图
景观平面图
规划平面图
其他平面图
小区平面图