CAD频道
CAD图库
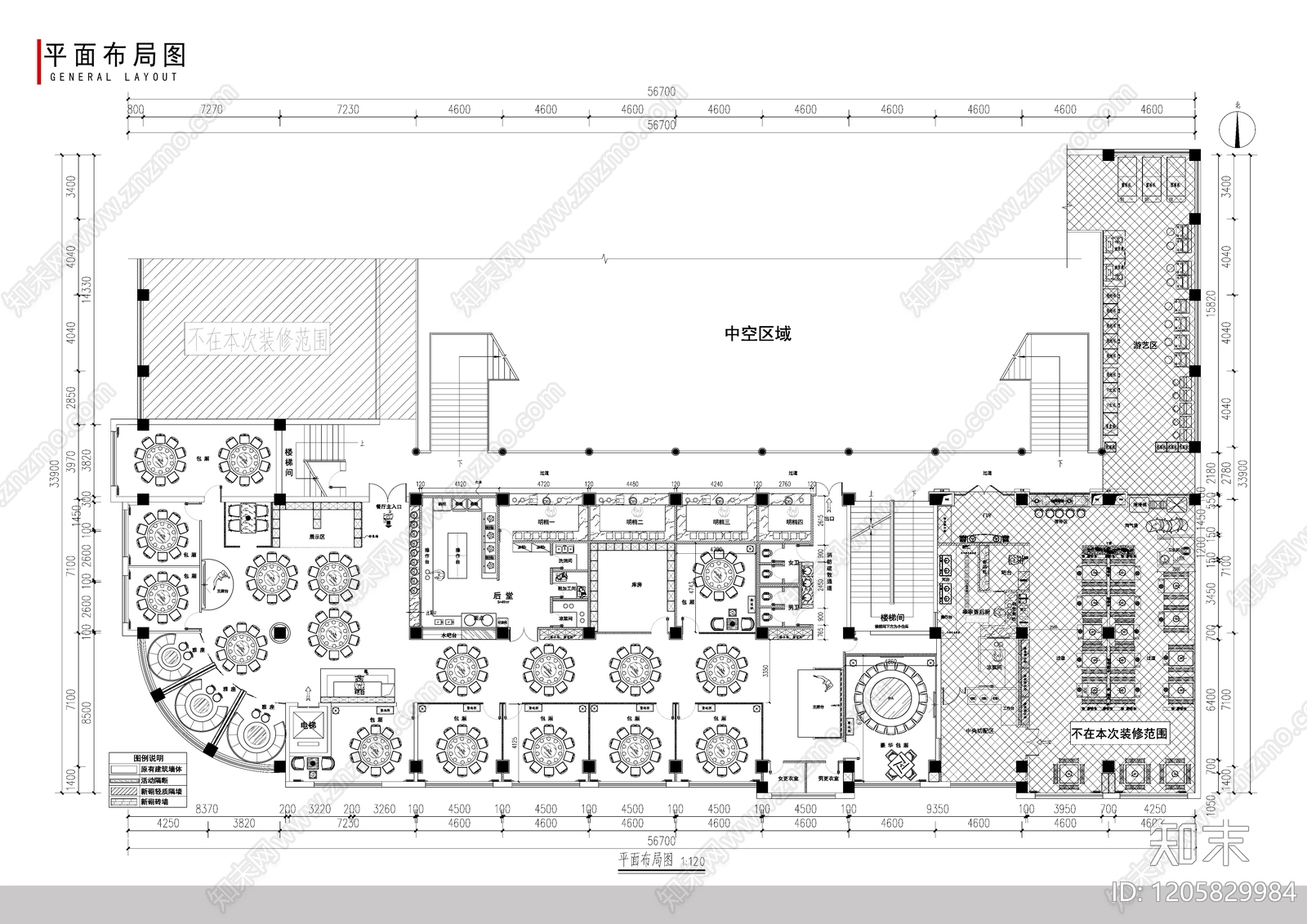
现代酒楼 包厢 中餐厅 宴会厅 平面图 施工图
1/
4
Previous
Next
现代酒楼CAD下载
ID: 1205829984
复制
上传作者
黄桃罐头
上传时间
2025-11-19
文件大小
0.51M
设计风格:
--
CAD版本:
CAD2014
包含文件:
CAD
授权
独家
立即下载
收藏
分享
举报
相关推荐
综合
餐饮空间
酒楼
中餐厅
西餐厅
快餐店
自助餐厅
茶餐厅
其他餐饮空间
食堂
奶茶店