CAD频道
CAD图库
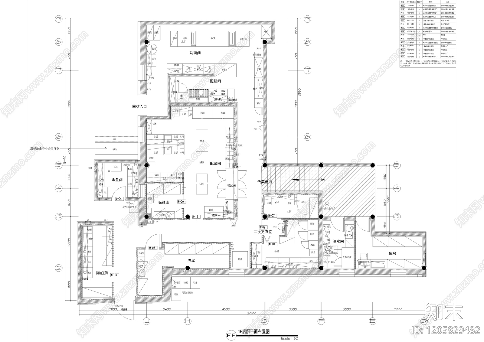
现代后厨 火锅餐厅厨房 施工图
1/
4
Previous
Next
现代后厨CAD下载
ID: 1205829482
复制
上传作者
大白搬砖来了
上传时间
2025-11-19
文件大小
8.67M
设计风格:
--
CAD版本:
CAD2004
包含文件:
CAD
授权
独家
立即下载
收藏
分享
举报
相关推荐
综合
餐饮空间
后厨
中餐厅
西餐厅
快餐店
自助餐厅
茶餐厅
其他餐饮空间
食堂
奶茶店