1/2


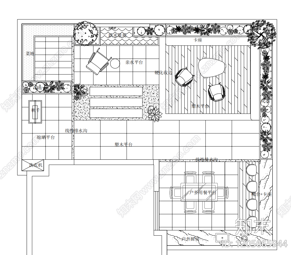
现代简约屋顶花园CAD下载
ID: 1205665944
复制
上传作者
247701097832
247701097832上传时间2025-11-14
文件大小0.24M
设计风格:--
CAD版本:CAD2023
包含文件:CAD
授权独家
立即下载
收藏
分享
举报
相关推荐
综合
居住区景观
屋顶花园
庭院
示范区景观
售楼处景观
小区主入口
小区中心广场
宅间绿地
社区儿童区
社区健身区


247701097832上传时间2025-11-14
文件大小0.24M
设计风格:--
CAD版本:CAD2023
包含文件:CAD
授权独家