CAD频道
CAD图库
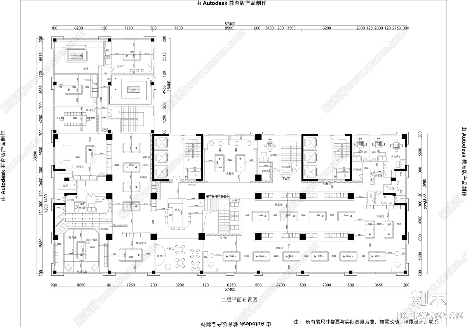
现代轻奢台球厅 高端台球俱乐部 平面图
1/
3
Previous
Next
现代轻奢台球厅CAD下载
ID: 1205395739
复制
上传作者
刘博空间设计
上传时间
2025-11-06
文件大小
1.02M
设计风格:
--
CAD版本:
CAD2007
包含文件:
CAD
授权
独家
立即下载
收藏
分享
举报
相关推荐
综合
平面图
工装平面图
景观平面图
规划平面图
其他平面图
小区平面图