1/2


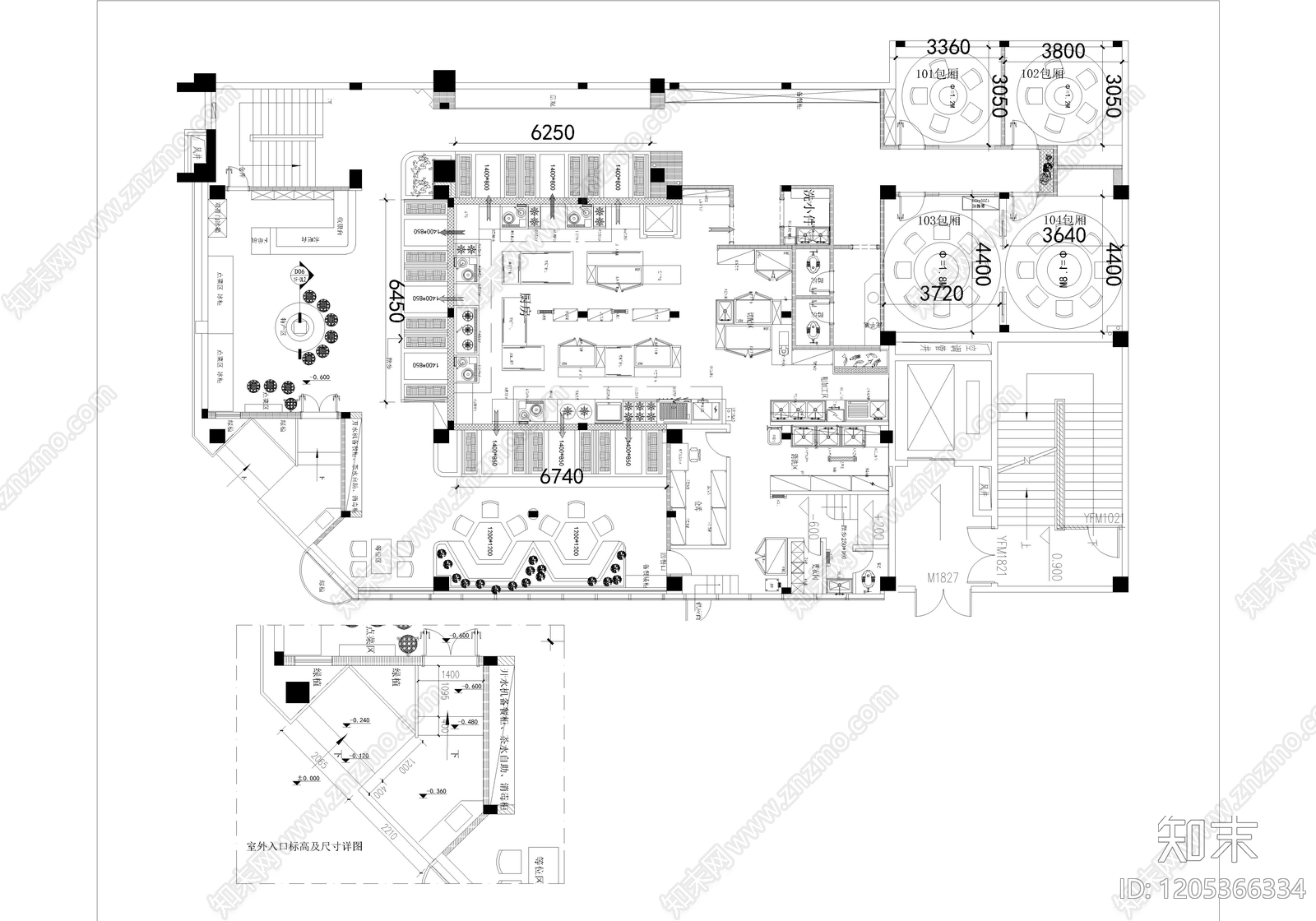
复古原木中餐厅CAD下载
ID: 1205366334
复制
上传作者
刘博空间设计
刘博空间设计上传时间2025-11-05
文件大小23.36M
设计风格:--
CAD版本:T20 天正建筑 V5.0
包含文件:CAD
授权独家
立即下载
收藏
分享
举报
相关推荐
综合
平面图
工装平面图
景观平面图
规划平面图
其他平面图
小区平面图


刘博空间设计上传时间2025-11-05
文件大小23.36M
设计风格:--
CAD版本:T20 天正建筑 V5.0
包含文件:CAD
授权独家