CAD频道
CAD图库
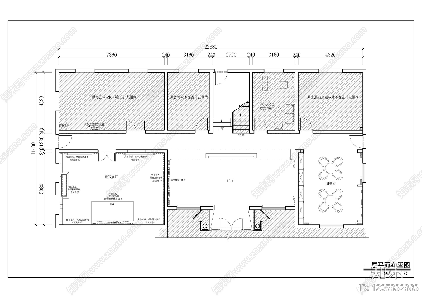
服务中心 党群服务中心 466平党群驿站 展厅餐厅 施工图
1/
10
Previous
Next
服务中心CAD下载
ID: 1205332383
复制
上传作者
简简单单
上传时间
2025-11-04
文件大小
3.77M
设计风格:
--
CAD版本:
CAD2004
包含文件:
CAD
授权
独家
立即下载
收藏
分享
举报
相关推荐
综合
公共空间
服务中心
其他公共空间
公共卫生间
宿舍
门头
活动中心
会展
母婴室
档案室