CAD频道
CAD图库
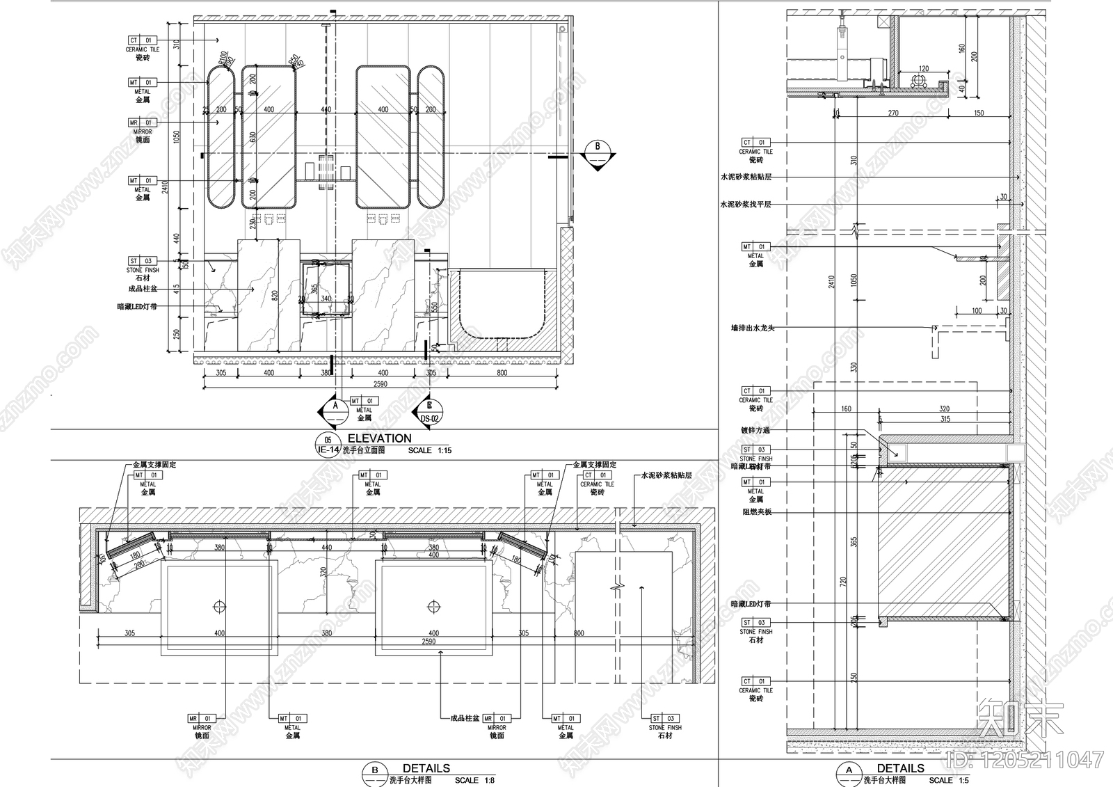
柜体节点 洗手台大样 梳妆台大样 施工图
1/
3
Previous
Next
柜体节点CAD下载
ID: 1205211047
复制
上传作者
Daodao
上传时间
2025-10-31
文件大小
4.16M
设计风格:
--
CAD版本:
--
包含文件:
CAD
授权
独家
立即下载
收藏
分享
举报
相关推荐
综合
家具节点详图
柜体节点
吧台节点
壁炉节点
卡座节点
前台节点
综合家具节点