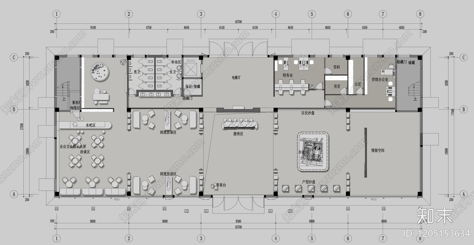
现代简约售楼处施工图下载【ID:1205153634】

现代简约售楼处CAD下载

ID: 1205153634
复制
上传作者
eleven5354eleven5354

上传时间2025-10-29

文件大小1.57M

设计风格:--

CAD版本:CAD2004

包含文件:CAD

授权独家

立即下载
收藏
分享
举报
相关推荐
综合
平面图
工装平面图
景观平面图
规划平面图
其他平面图
小区平面图