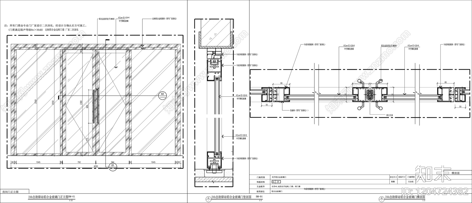
综合门节点施工图下载【ID:1204724382】

综合门节点CAD下载

ID: 1204724382
复制
上传作者
精品创图精品创图

上传时间2025-10-16

文件大小2.24M

设计风格:--

CAD版本:CAD2018

包含文件:CAD

授权独家

立即下载
收藏
分享
举报
相关推荐
综合
门节点
综合门节点
入户门
铁艺大门
月洞门
玻璃门节点
推拉门节点
隐形门节点