CAD频道
CAD图库
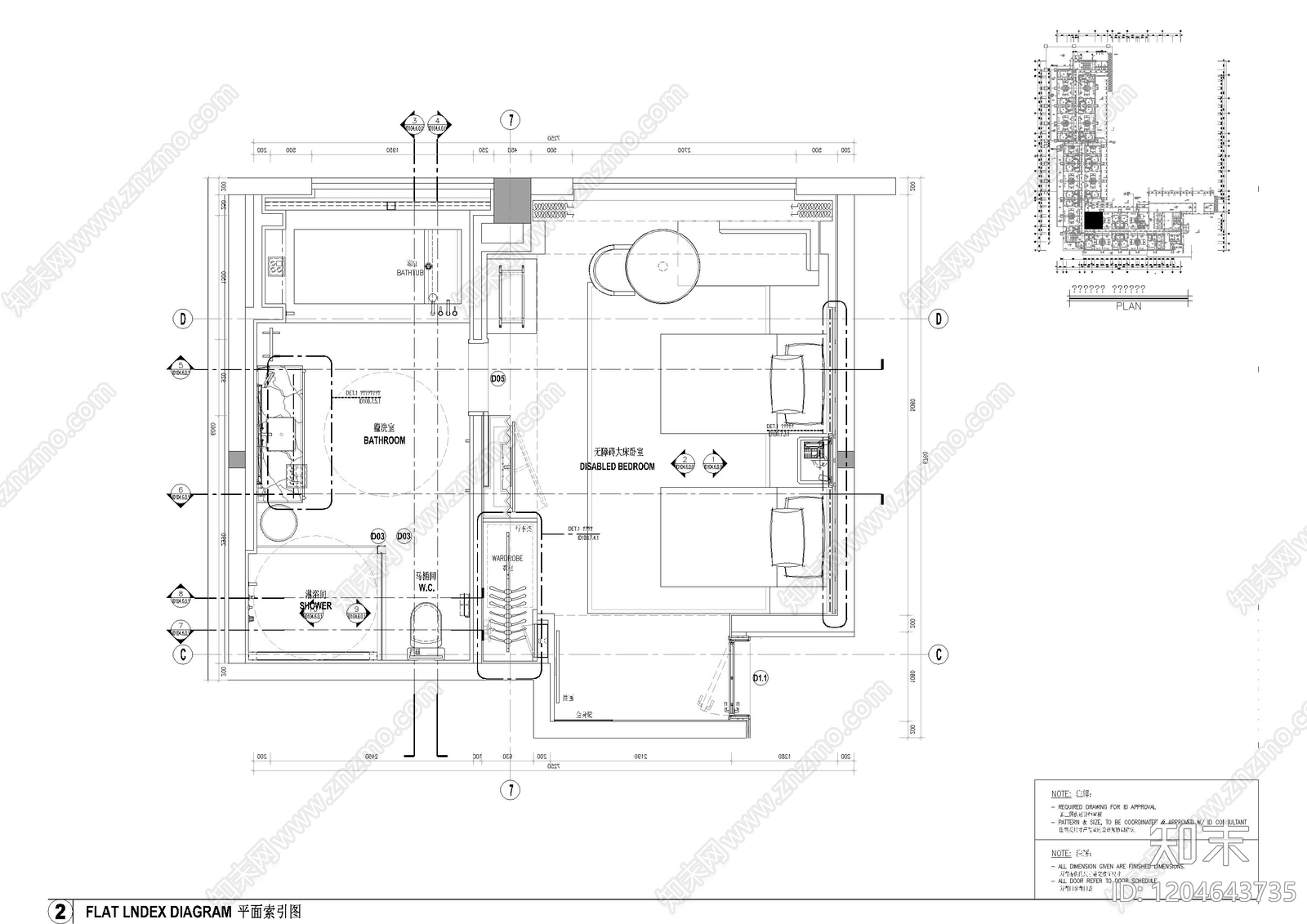
酒店客房 酒店无障碍客房 施工图
1/
4
Previous
Next
酒店客房CAD下载
ID: 1204643735
复制
上传作者
小趴菜园
上传时间
2025-10-14
文件大小
3.72M
设计风格:
--
CAD版本:
CAD2004
包含文件:
CAD
授权
独家
立即下载
收藏
分享
举报
相关推荐
综合
酒店
酒店客房
酒店餐厅
酒店大堂
酒店公区
酒店卫生间
酒店套房
酒店宴会厅
其他酒店