CAD频道
CAD图库
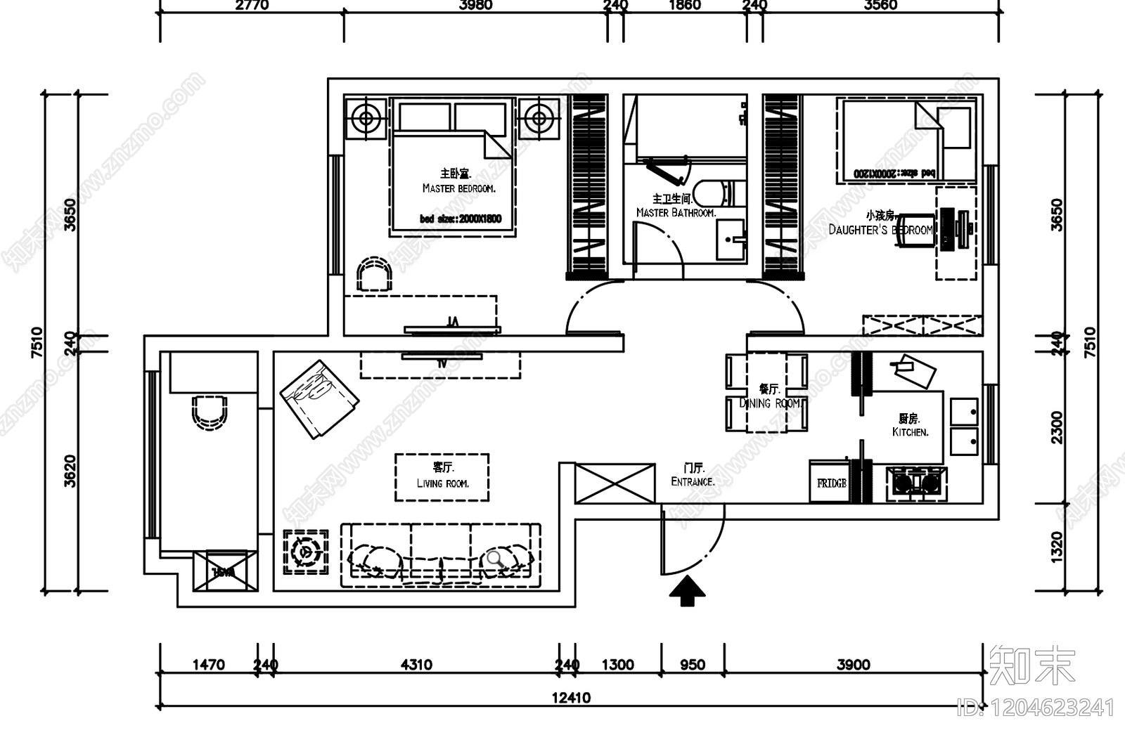
三居 三室一厅 平面图
1/
2
Previous
Next
三居CAD下载
ID: 1204623241
复制
上传作者
假如能摸鱼
上传时间
2025-10-13
文件大小
4.99M
设计风格:
--
CAD版本:
CAD2024
包含文件:
CAD
授权
普通
立即下载
收藏
分享
举报
相关推荐
综合
原始户型图
三居
一居
两居
四居
五居及以上