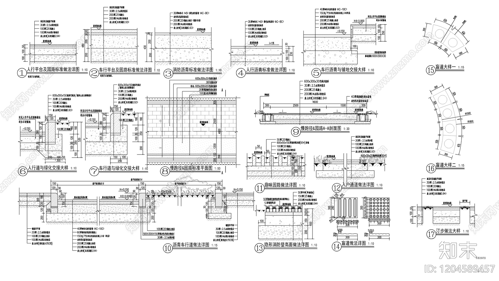
景观节点施工图下载【ID:1204589457】

景观节点CAD下载

ID: 1204589457
复制
上传作者
承诺不熬椰承诺不熬椰

上传时间2025-10-12

文件大小0.79M

设计风格:--

CAD版本:CAD2004

包含文件:CAD

授权独家

立即下载
收藏
分享
举报
相关推荐
综合
节点详图
景观节点
吊顶节点
墙面节点
地面节点
门节点
其他节点详图
建筑工程节点
景观小品
楼梯节点