CAD频道
CAD图库
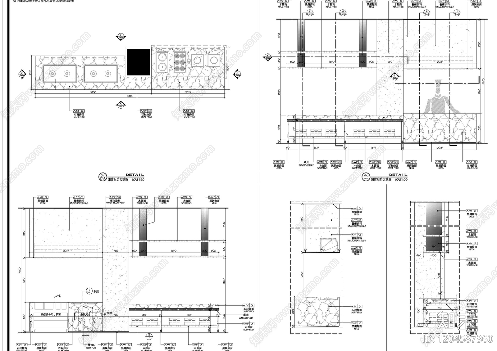
吧台节点 厨房餐台节点图 施工图
1/
3
Previous
Next
吧台节点CAD下载
ID: 1204587360
复制
上传作者
大白搬砖来了
上传时间
2025-10-12
文件大小
2.55M
设计风格:
--
CAD版本:
CAD2004
包含文件:
CAD
授权
独家
立即下载
收藏
分享
举报
相关推荐
综合
家具节点详图
吧台节点
壁炉节点
柜体节点
卡座节点
前台节点
综合家具节点