CAD频道
CAD图库
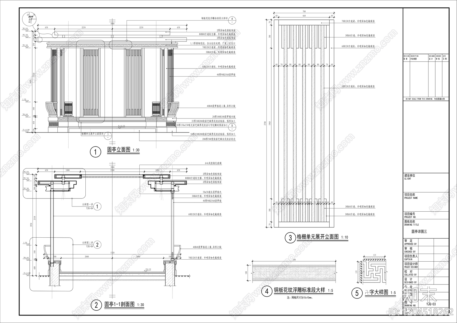
新中式中式廊架 新中式圆形亭子 新中式圆形廊架 施工图
1/
5
Previous
Next
新中式中式廊架CAD下载
ID: 1204518262
复制
上传作者
ID:64824478
上传时间
2025-10-10
文件大小
6.19M
设计风格:
--
CAD版本:
--
包含文件:
CAD
授权
独家
立即下载
收藏
分享
举报
相关推荐
综合
景观小品
廊架
亭子
景墙
综合景观小品
雨棚
围墙
挡土墙
入口
景观坐凳