CAD频道
CAD图库
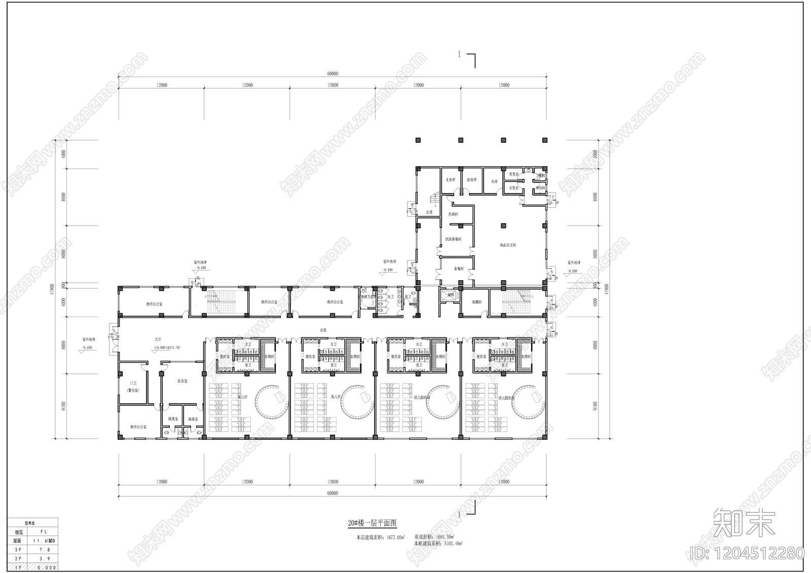
现代幼儿园建筑 12班幼儿园 设托儿所 3层 施工图
1/
5
Previous
Next
现代幼儿园建筑CAD下载
ID: 1204512280
复制
上传作者
需要点点幸运
上传时间
2025-10-10
文件大小
0.23M
设计风格:
--
CAD版本:
T20 天正建筑 V5.0
包含文件:
CAD
授权
独家
立即下载
收藏
分享
举报
相关推荐
综合
教育建筑
幼儿园建筑
学校建筑