CAD频道
CAD图库
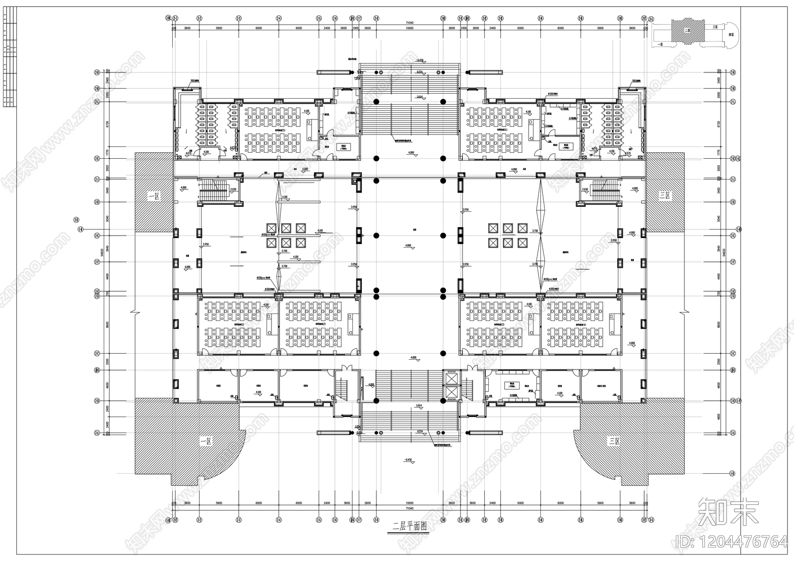
现代学校建筑 小学设计建筑平面 方案 施工图
1/
10
Previous
Next
现代学校建筑CAD下载
ID: 1204476764
复制
上传作者
常威打来福
上传时间
2025-10-09
文件大小
1.97M
设计风格:
--
CAD版本:
天正建筑 2021
包含文件:
CAD
授权
独家
立即下载
收藏
分享
举报
相关推荐
综合
教育建筑
学校建筑
幼儿园建筑