CAD频道
CAD图库
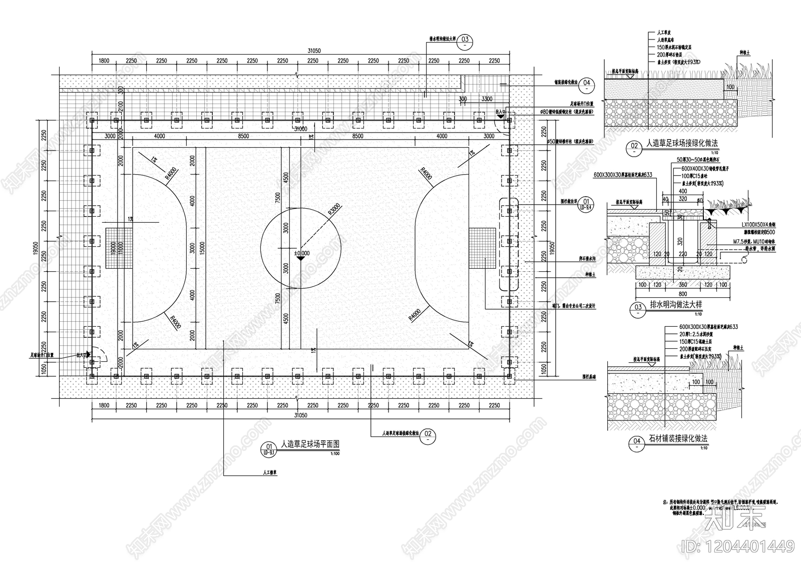
现代足球场 人造草足球场做法 施工图
1/
2
Previous
Next
现代足球场CAD下载
ID: 1204401449
复制
上传作者
承诺不熬椰
上传时间
2025-10-04
文件大小
0.41M
设计风格:
--
CAD版本:
CAD2004
包含文件:
CAD
授权
独家
立即下载
收藏
分享
举报
相关推荐
综合
运动场
足球场
网球场
篮球场
其他运动场地
操场
羽毛球场
看台
高尔夫