1/2


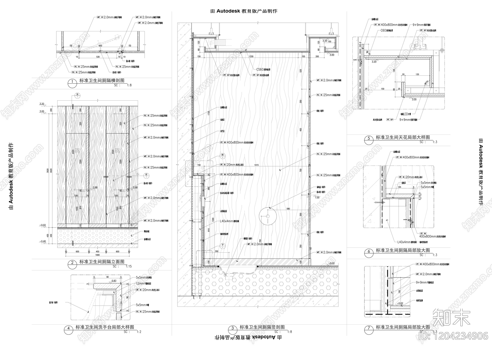
现代极简公共卫生间CAD下载
ID: 1204234906
复制
上传作者
商业设计(互粉)
商业设计(互粉)上传时间2025-09-27
文件大小5.71M
设计风格:--
CAD版本:CAD2014
包含文件:CAD
授权独家
立即下载
收藏
分享
举报
相关推荐
综合
公共空间
公共卫生间
其他公共空间
宿舍
门头
服务中心
活动中心
会展
母婴室
档案室


商业设计(互粉)上传时间2025-09-27
文件大小5.71M
设计风格:--
CAD版本:CAD2014
包含文件:CAD
授权独家