CAD频道
CAD图库
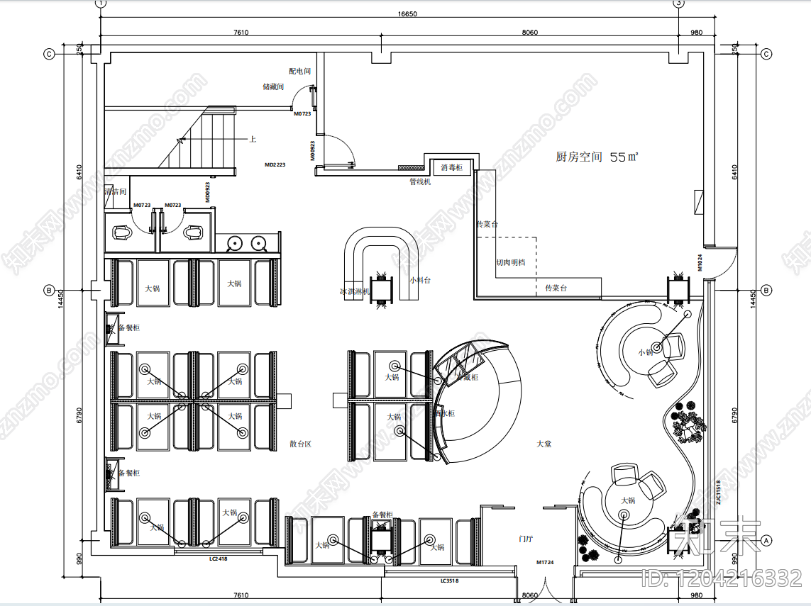
现代火锅店 内蒙古火锅店 施工图
1/
9
Previous
Next
现代火锅店CAD下载
ID: 1204216332
复制
上传作者
施工图绘制
上传时间
2025-09-26
文件大小
24.62M
设计风格:
--
CAD版本:
CAD2022
包含文件:
CAD
授权
独家
立即下载
收藏
分享
举报
相关推荐
综合
餐饮空间
火锅店
中餐厅
西餐厅
快餐店
自助餐厅
茶餐厅
其他餐饮空间
食堂
奶茶店