CAD频道
CAD图库
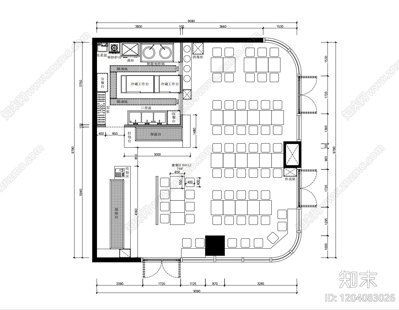
现代快餐店 快餐厅 小碗菜 餐厅 自选菜 厨房 平面图
现代快餐店CAD下载
ID: 1204083026
复制
上传作者
小小画图仔
上传时间
2025-09-23
文件大小
0.89M
设计风格:
--
CAD版本:
CAD2014
包含文件:
CAD
授权
独家
立即下载
收藏
分享
举报
相关推荐
综合
餐饮空间
快餐店
中餐厅
西餐厅
自助餐厅
茶餐厅
其他餐饮空间
食堂
奶茶店
咖啡厅