CAD频道
CAD图库
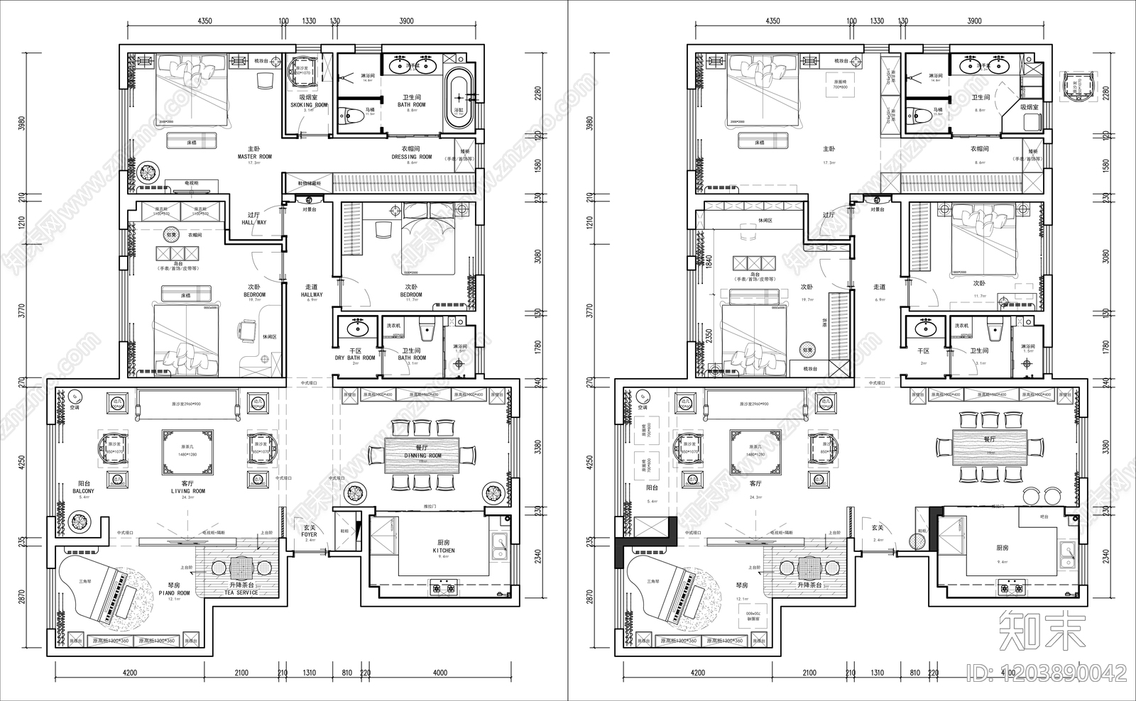
其他家装空间 大平层 家装 平面图 中式 施工图
其他家装空间CAD下载
ID: 1203890042
复制
上传作者
余地..
上传时间
2025-09-17
文件大小
0.35M
设计风格:
--
CAD版本:
CAD2016
包含文件:
CAD
授权
独家
立即下载
收藏
分享
举报
相关推荐
综合
家装
其他家装空间
公寓
别墅
平层
家装局部空间
样板间
阳光房
全屋智能
全屋定制