CAD频道
CAD图库
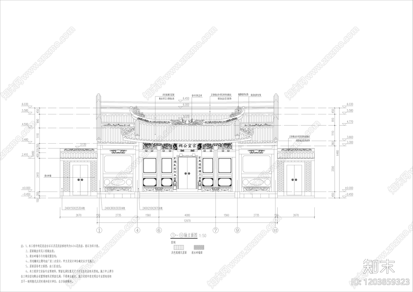
祠堂 广东祠堂修缮图 广东传统古建筑 古建筑 文物修缮图 施工图
1/
6
Previous
Next
祠堂CAD下载
ID: 1203859323
复制
上传作者
MKay
上传时间
2025-09-16
文件大小
4.46M
设计风格:
--
CAD版本:
T30 天正 V1.0
包含文件:
CAD
授权
独家
立即下载
收藏
分享
举报
相关推荐
综合
古建
祠堂
寺庙
徽派建筑
仿古建筑
其他古建筑