CAD频道
CAD图库
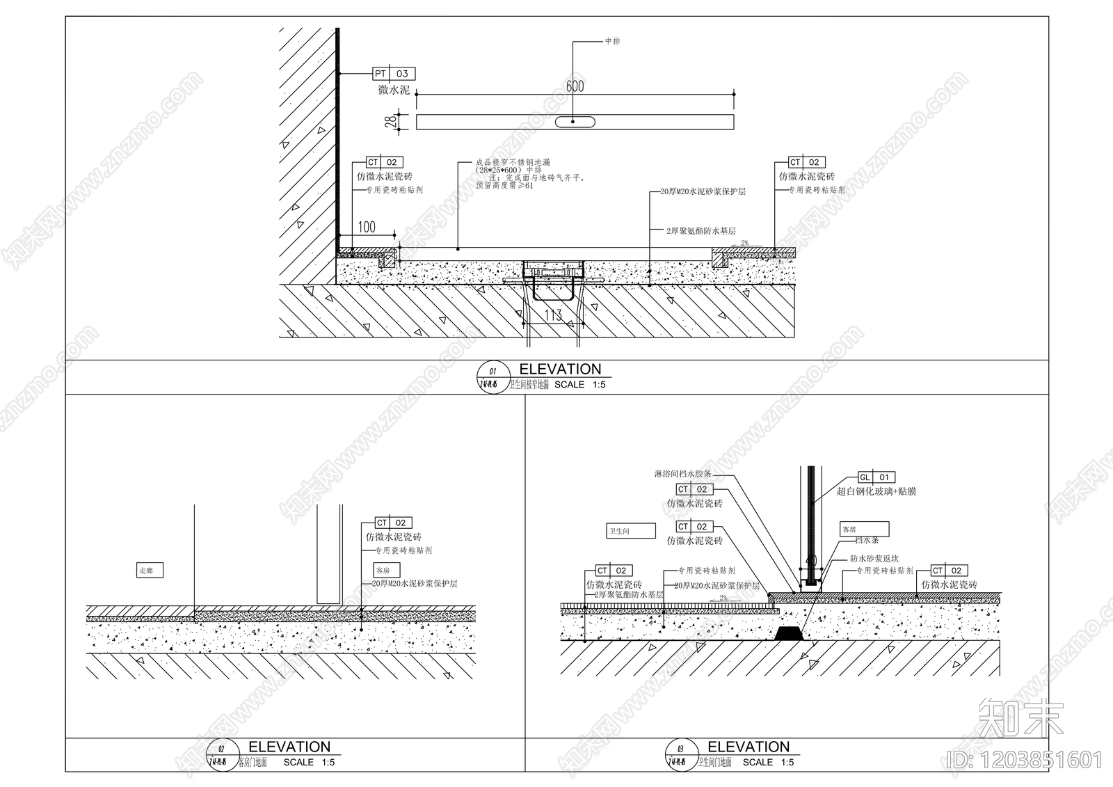
门槛石节点 卫生间地漏 极窄地漏 卫生间门槛 门槛石 施工图
门槛石节点CAD下载
ID: 1203851601
复制
上传作者
一棵树-
上传时间
2025-09-16
文件大小
2.95M
设计风格:
--
CAD版本:
CAD2013
包含文件:
CAD
授权
独家
立即下载
收藏
分享
举报
相关推荐
综合
地面节点
门槛石节点
地坪漆
地台节点
地毯节点
路面节点
木地板
花岗岩
地面综合节点