CAD频道
CAD图库
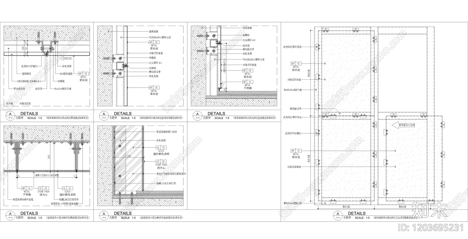
墙面节点 墙面节点 仿石砖干挂详图 瓷砖干挂详图 施工图
1/
3
Previous
Next
墙面节点CAD下载
ID: 1203695231
复制
上传作者
ZMVIP用户
上传时间
2025-09-10
文件大小
0.22M
设计风格:
--
CAD版本:
CAD2018
包含文件:
CAD
授权
独家
立即下载
收藏
分享
举报
相关推荐
综合
墙面节点
背景墙节点
轻钢龙骨隔墙
壁龛节点
隔音墙节点