CAD频道
CAD图库
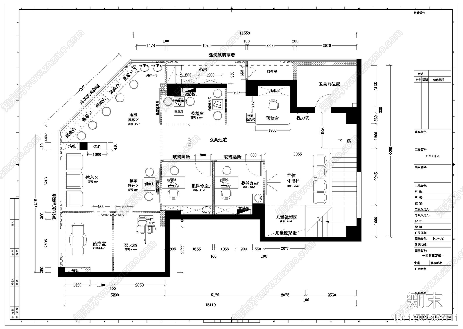
现代眼镜店 眼镜店平面系统图 施工图
1/
4
Previous
Next
现代眼镜店CAD下载
ID: 1203503111
复制
上传作者
小趴菜园
上传时间
2025-09-05
文件大小
1.21M
设计风格:
--
CAD版本:
CAD2004
包含文件:
CAD
授权
独家
立即下载
收藏
分享
举报
相关推荐
综合
商业空间
眼镜店
售楼处
商场
其他商业空间
超市
服装店
书店
美甲店
珠宝店