CAD频道
CAD图库
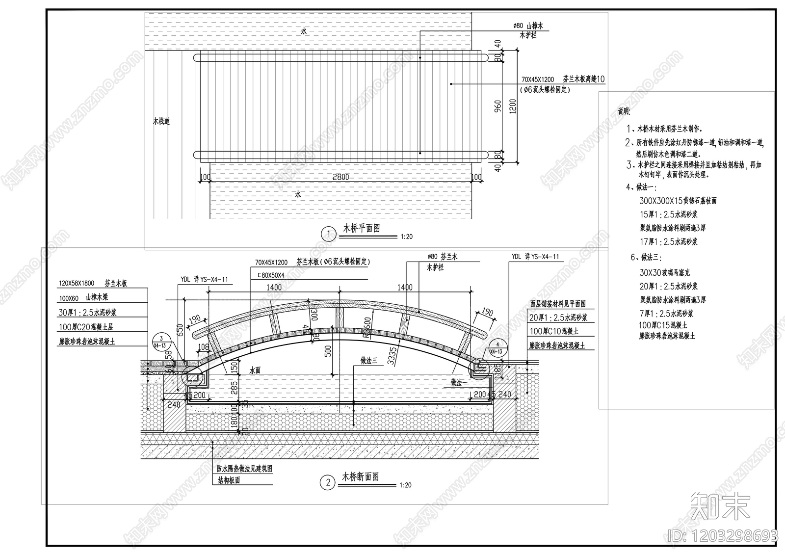
中式景观桥 景观别墅木拱桥 施工图
1/
2
Previous
Next
中式景观桥CAD下载
ID: 1203298693
复制
上传作者
常威打来福
上传时间
2025-08-31
文件大小
0.1M
设计风格:
--
CAD版本:
天正建筑 2021
包含文件:
CAD
授权
独家
立即下载
收藏
分享
举报
相关推荐
综合
景观小品
景观桥
亭子
廊架
景墙
综合景观小品
雨棚
围墙
挡土墙
入口