CAD频道
CAD图库
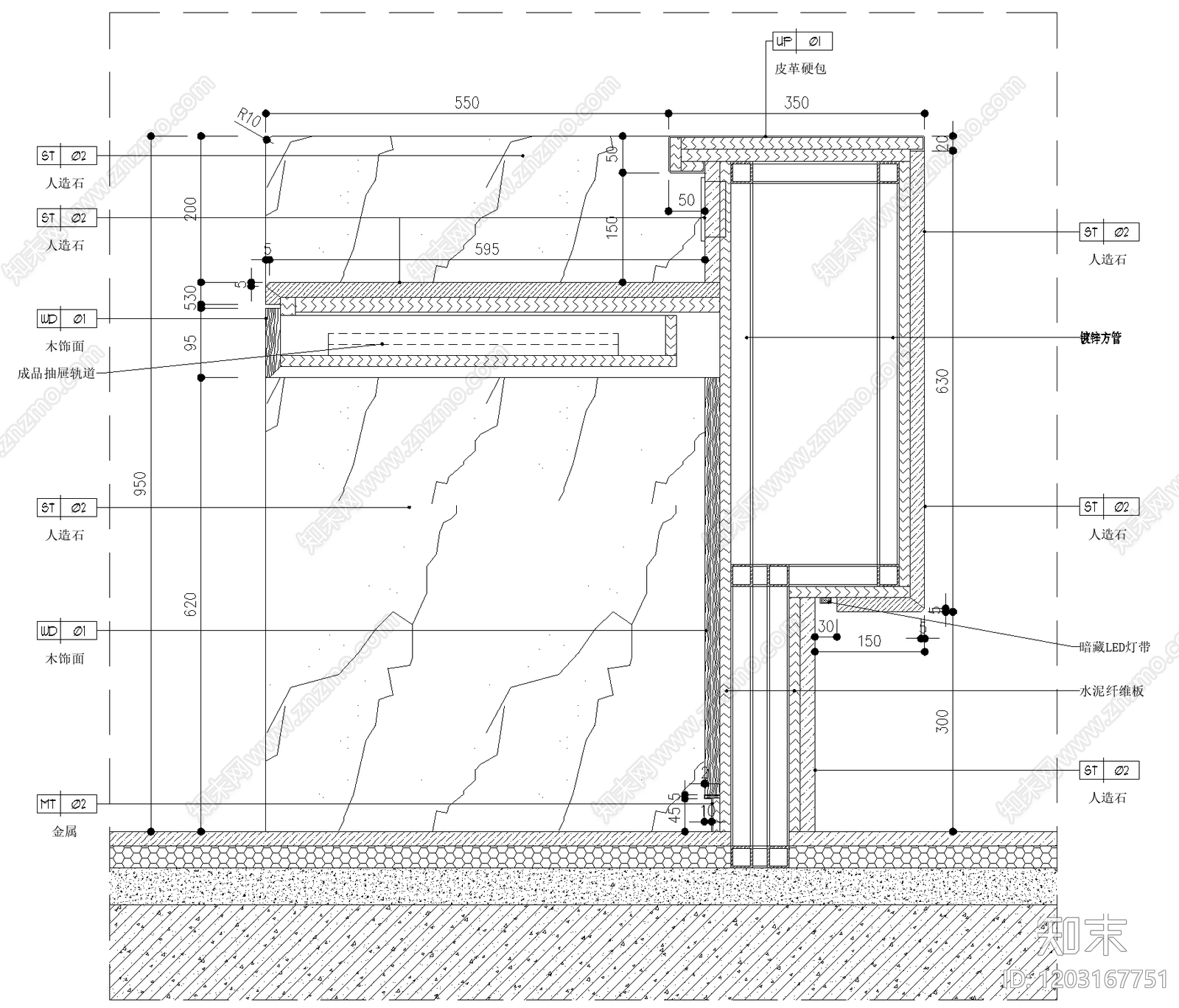
前台节点 接待台节点图 吧台接待台 前台接待 施工图
1/
3
Previous
Next
前台节点CAD下载
ID: 1203167751
复制
上传作者
黑色幽默(互粉)
上传时间
2025-08-28
文件大小
0.32M
设计风格:
--
CAD版本:
CAD2004
包含文件:
CAD
授权
独家
立即下载
收藏
分享
举报
相关推荐
综合
家具节点详图
前台节点
吧台节点
壁炉节点
柜体节点
卡座节点
综合家具节点