CAD频道
CAD图库
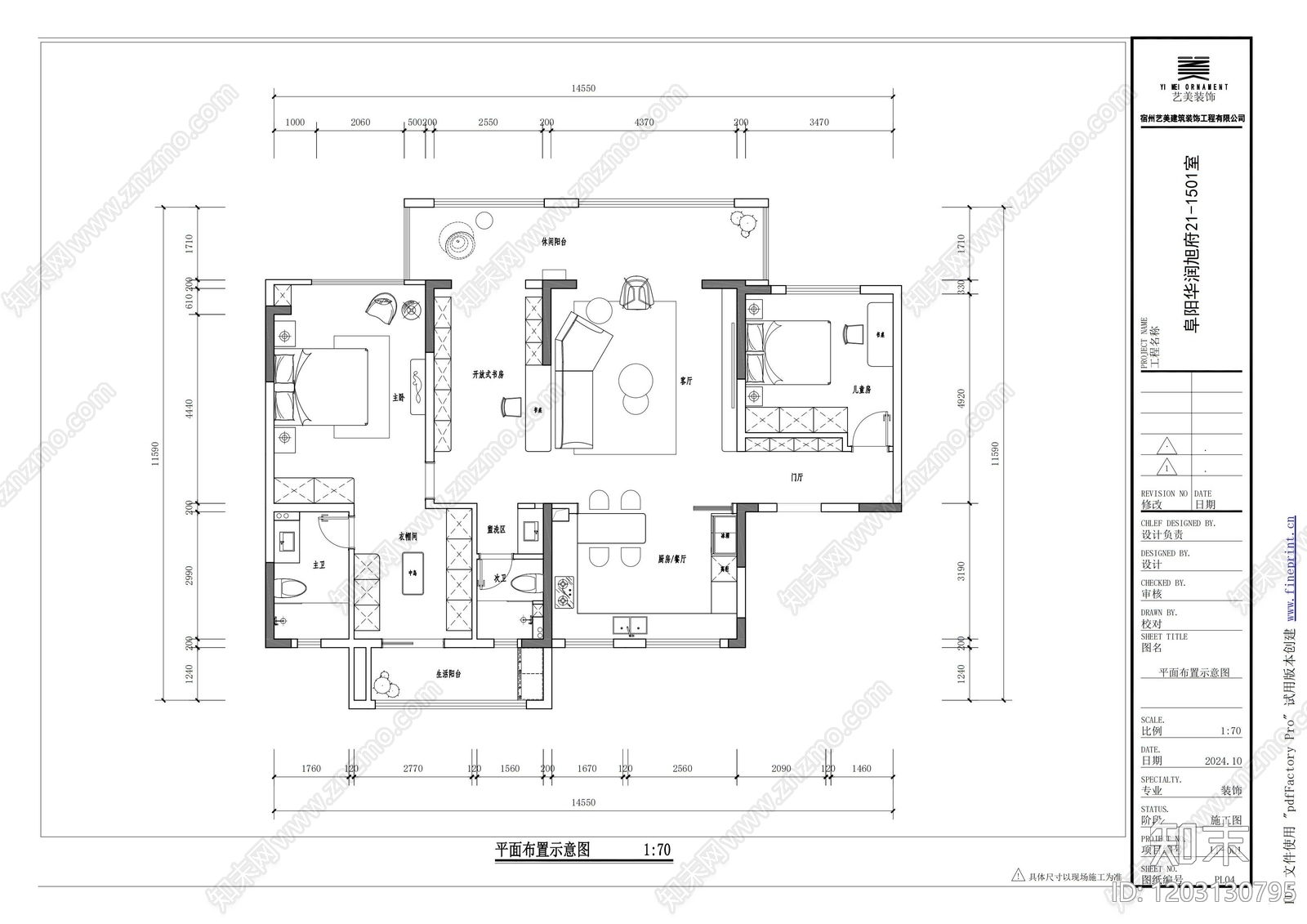
样板间 家装施图 家装立面图 家装平面布置图 施工图
1/
10
Previous
Next
样板间CAD下载
ID: 1203130795
复制
上传作者
ωǒ壞絯孓槑
上传时间
2025-08-27
文件大小
5.31M
设计风格:
--
CAD版本:
CAD2016
包含文件:
CAD
授权
独家
立即下载
收藏
分享
举报
相关推荐
综合
家装
样板间
公寓
别墅
平层
其他家装空间
家装局部空间
阳光房
全屋智能
全屋定制