CAD频道
CAD图库
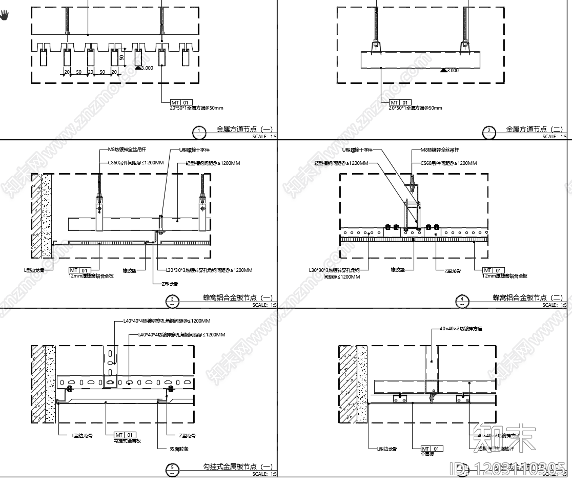
铝单板吊顶 金属板 铝方通 蜂窝铝板 挂钩式吊顶 施工图
铝单板吊顶CAD下载
ID: 1203110305
复制
上传作者
山野听风
上传时间
2025-08-26
文件大小
0.8M
设计风格:
--
CAD版本:
CAD2016
包含文件:
CAD
授权
独家
立即下载
收藏
分享
举报
相关推荐
综合
吊顶节点
铝单板吊顶
方通吊顶
格栅吊顶
扣板吊顶
软膜天花
GRG吊顶节点
石膏板吊顶
矿棉板吊顶