CAD频道
CAD图库
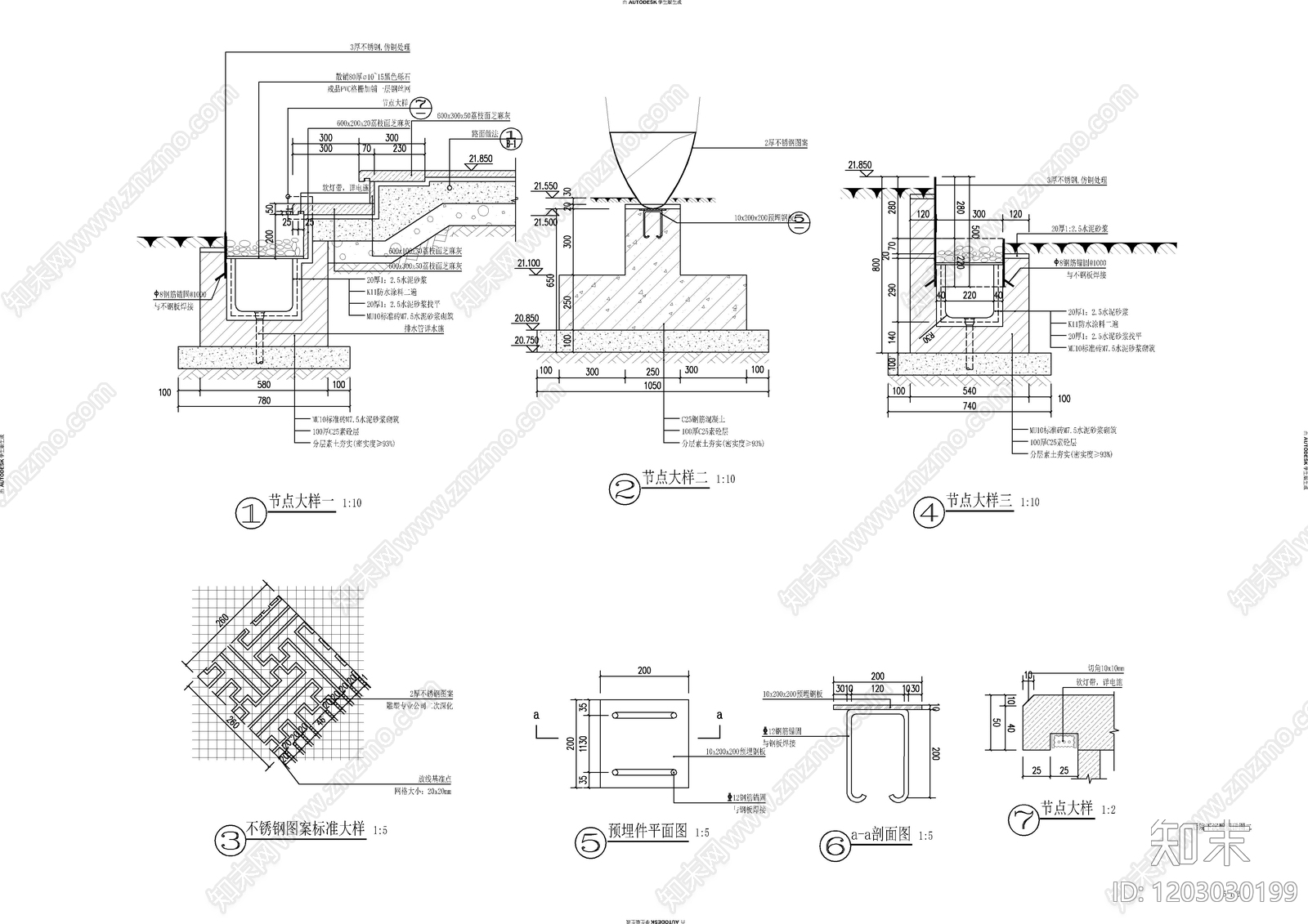
现代雕塑 后院下沉雕塑详图 施工图
1/
2
Previous
Next
现代雕塑CAD下载
ID: 1203030199
复制
上传作者
承诺不熬椰
上传时间
2025-08-24
文件大小
0.33M
设计风格:
--
CAD版本:
CAD2004
包含文件:
CAD
授权
独家
立即下载
收藏
分享
举报
相关推荐
综合
景观小品
雕塑
亭子
廊架
景墙
综合景观小品
雨棚
围墙
挡土墙
入口