1/4


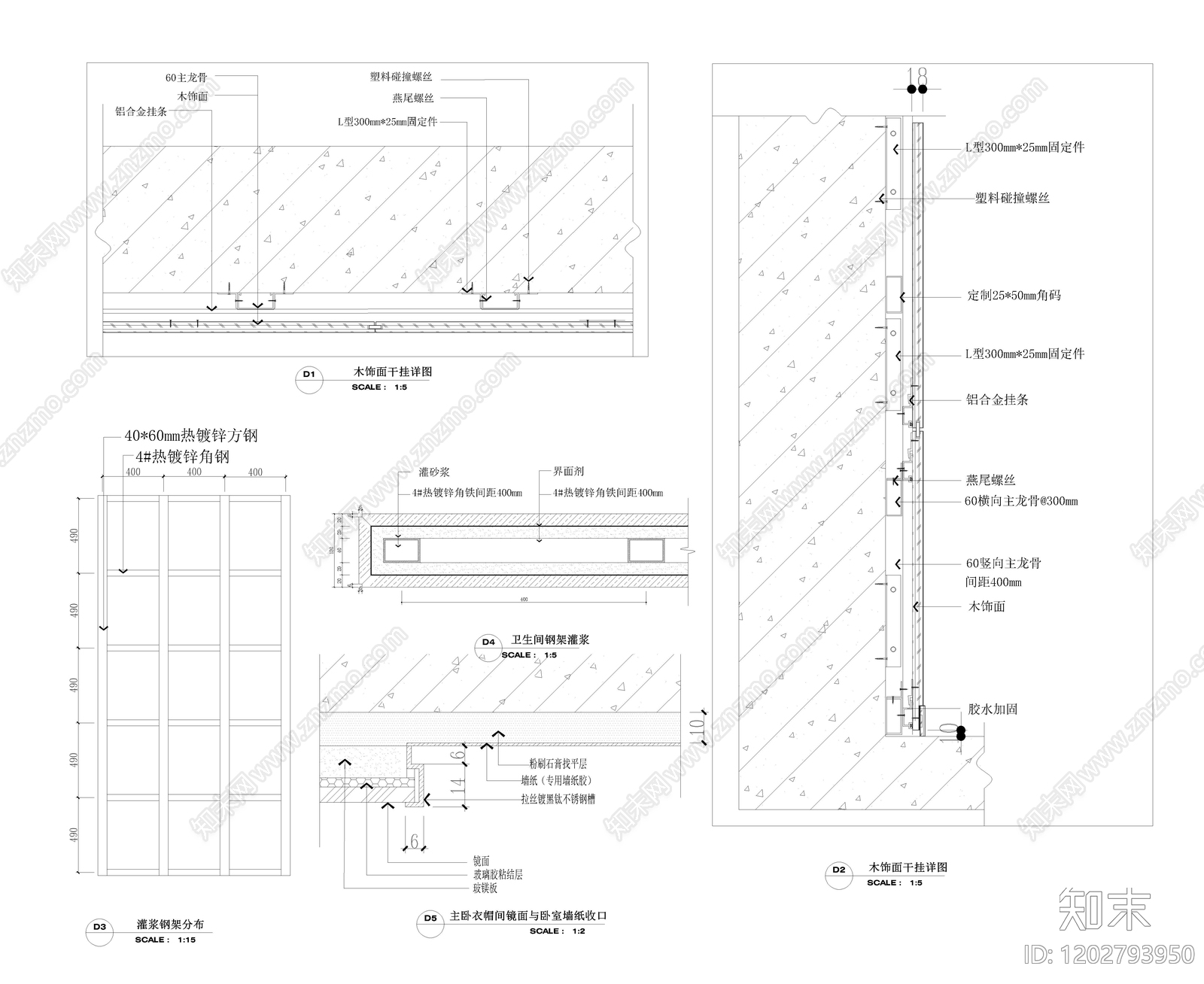
现代其他节点详图CAD下载
ID: 1202793950
复制
上传作者
2567820561138
2567820561138上传时间2025-08-18
文件大小1.31M
设计风格:--
CAD版本:--
包含文件:CAD
授权独家
立即下载
收藏
分享
举报
相关推荐
综合
节点详图
其他节点详图
吊顶节点
墙面节点
地面节点
门节点
建筑工程节点
景观小品
楼梯节点
水景


2567820561138上传时间2025-08-18
文件大小1.31M
设计风格:--
CAD版本:--
包含文件:CAD
授权独家