CAD频道
CAD图库
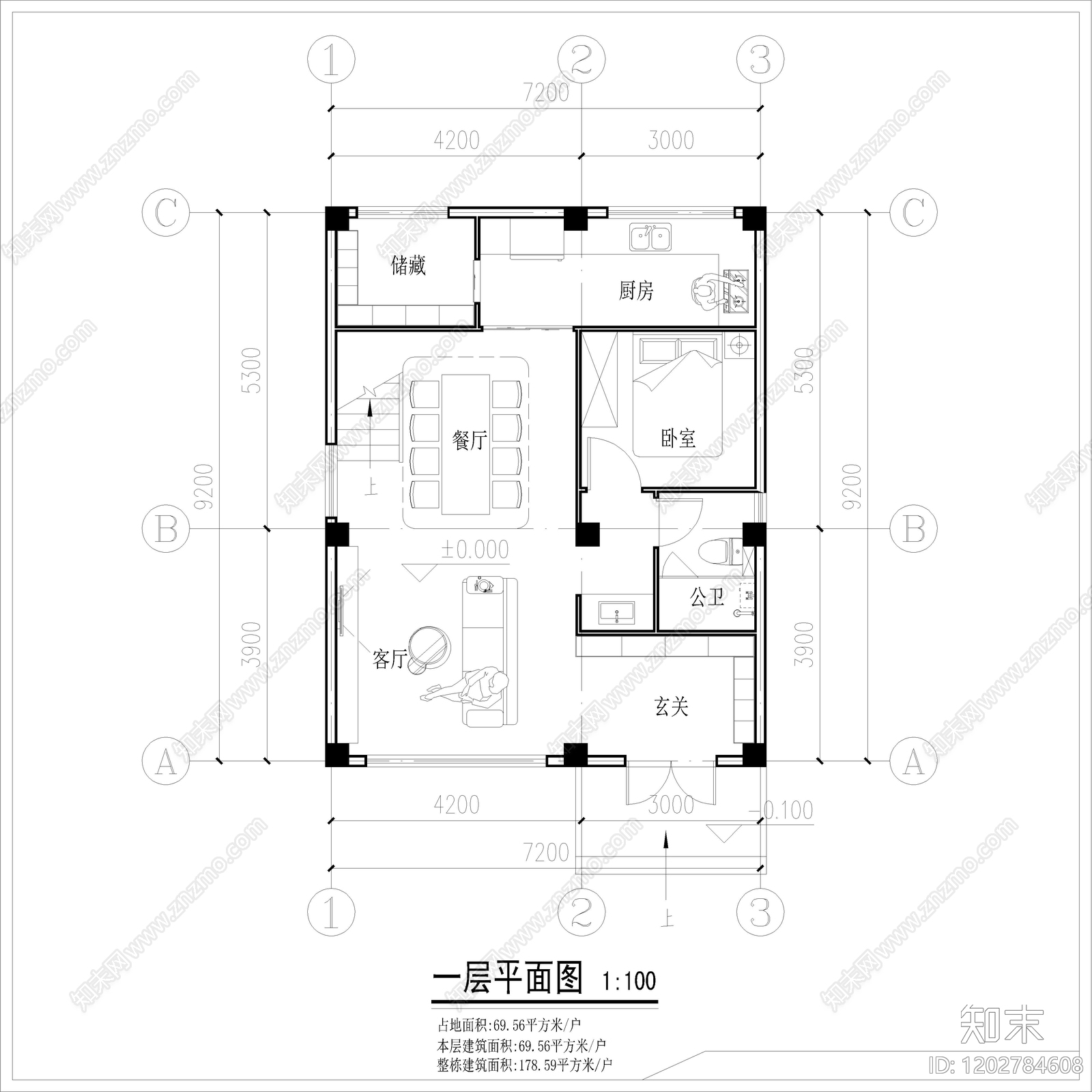
现代别墅建筑 三层独栋别墅平面 自建房平面 占地面积69平 建筑面积17...
1/
3
Previous
Next
现代别墅建筑CAD下载
ID: 1202784608
复制
上传作者
北辙伏地
上传时间
2025-08-18
文件大小
0.75M
设计风格:
--
CAD版本:
CAD2004
包含文件:
CAD
授权
独家
立即下载
收藏
分享
举报
相关推荐
综合
居住建筑
别墅建筑
住宅楼建筑
四合院
其他居住建筑
高层住宅
多层住宅
低层住宅
公寓建筑
联排住宅