CAD频道
CAD图库
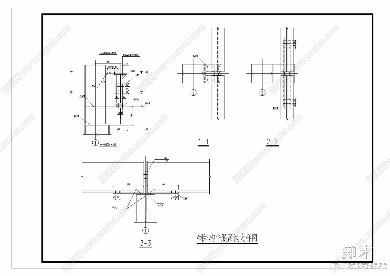
钢结构 钢结构 牛腿 吊车梁 施工图
钢结构CAD下载
ID: 1202771950
复制
上传作者
小强
上传时间
2025-08-17
文件大小
0.27M
设计风格:
--
CAD版本:
天正建筑 2021
包含文件:
CAD
授权
普通
立即下载
收藏
分享
举报
相关推荐
综合
结构设计
钢结构
混凝土结构
幕墙结构
砌体结构
木结构
结构节点图
其他结构图纸