1/4


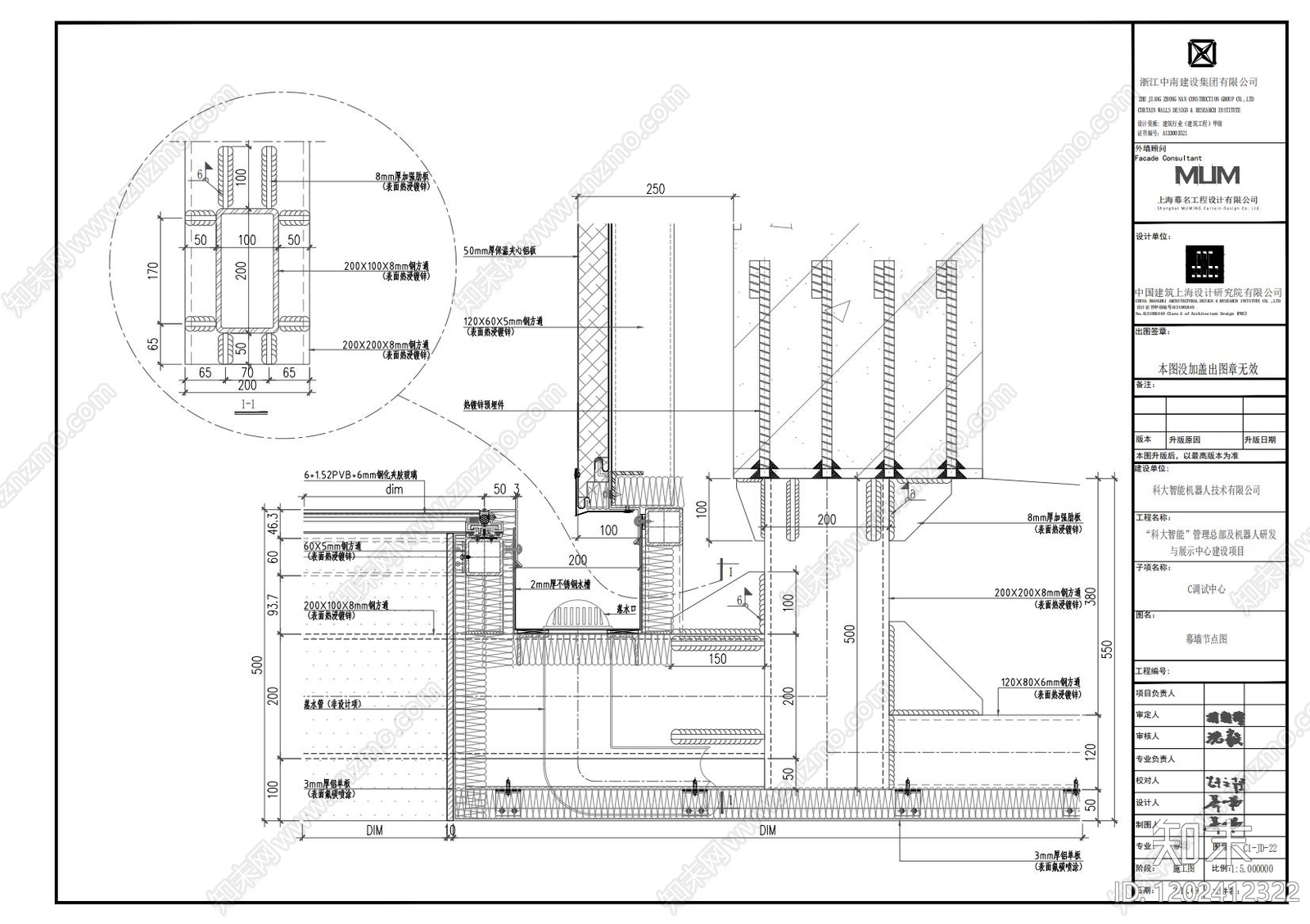
幕墙结构节点CAD下载
ID: 1202412322
复制
上传作者
李某的某(关注必回)
李某的某(关注必回)上传时间2025-08-08
文件大小3.4M
设计风格:--
CAD版本:CAD2004
包含文件:CAD
授权独家
立即下载
收藏
分享
举报
相关推荐
综合
结构节点图
幕墙结构节点
桁架
钢结构节点
混凝土节点
转换层
其他结构设计


李某的某(关注必回)上传时间2025-08-08
文件大小3.4M
设计风格:--
CAD版本:CAD2004
包含文件:CAD
授权独家