CAD频道
CAD图库
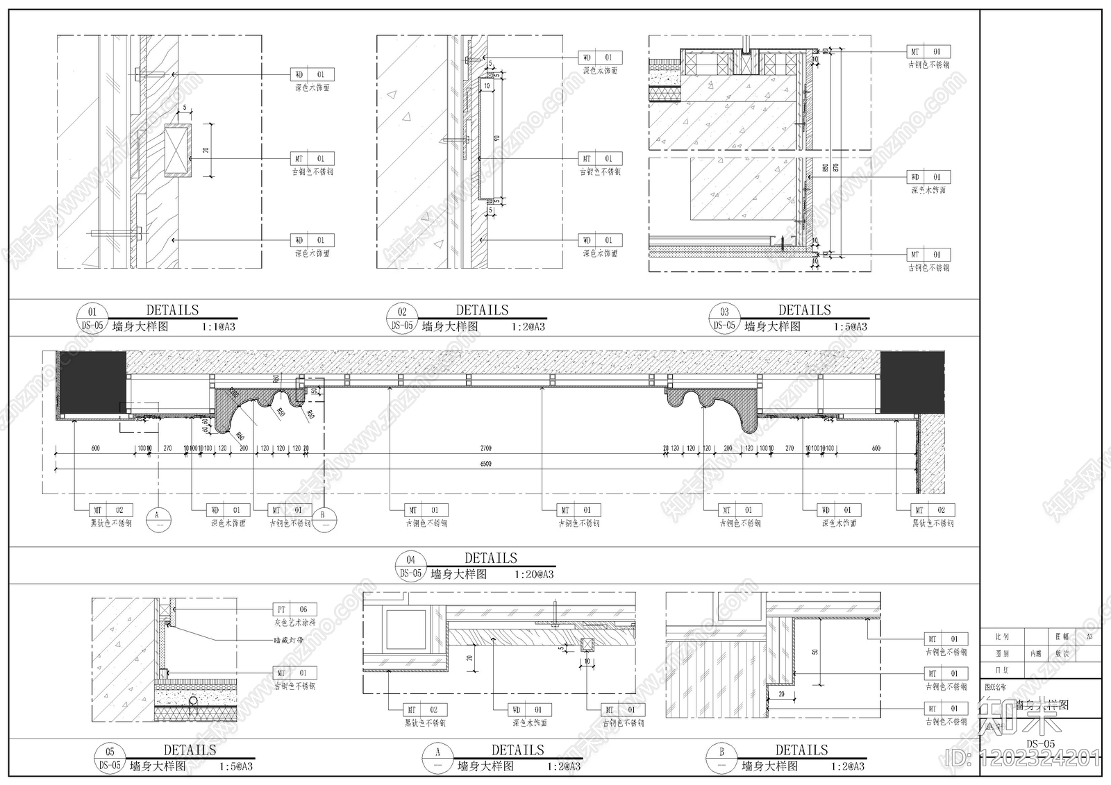
别墅 别墅全套 意式轻奢大别墅 1100平大别墅 别墅图纸完整齐全 施工...
1/
10
Previous
Next
别墅CAD下载
ID: 1202324201
复制
上传作者
sysh
上传时间
2025-08-07
文件大小
19.21M
设计风格:
--
CAD版本:
CAD2007
包含文件:
CAD
授权
独家
立即下载
收藏
分享
举报
相关推荐
综合
家装
别墅
公寓
平层
其他家装空间
家装局部空间
样板间
阳光房
全屋智能
全屋定制