CAD频道
CAD图库
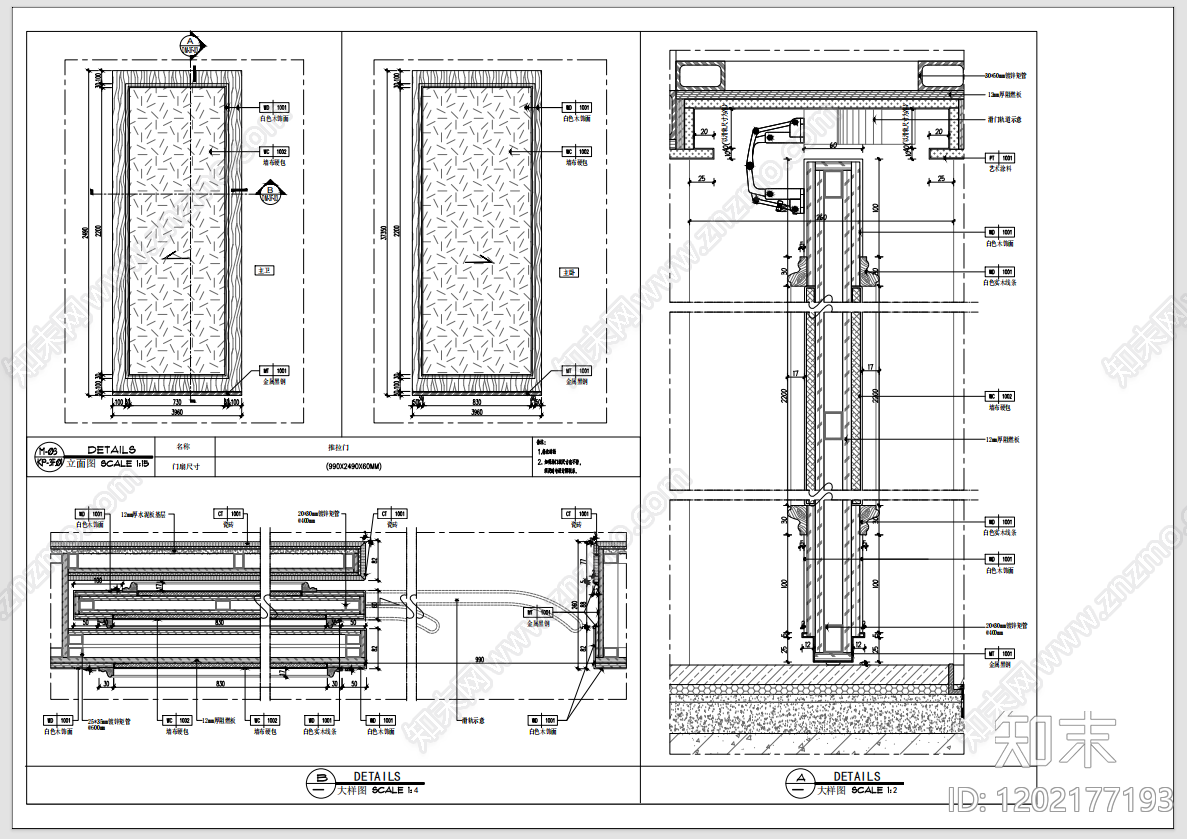
推拉门节点 巴士门 巴士推拉门 卫生间推拉门 巴士移门 隐形推拉门 施工...
1/
4
Previous
Next
推拉门节点CAD下载
ID: 1202177193
复制
上传作者
MUMU
上传时间
2025-08-04
文件大小
0.22M
设计风格:
--
CAD版本:
CAD2007
包含文件:
CAD
授权
独家
立即下载
收藏
分享
举报
相关推荐
综合
门节点
推拉门节点
入户门
铁艺大门
月洞门
玻璃门节点
隐形门节点
综合门节点