CAD频道
CAD图库
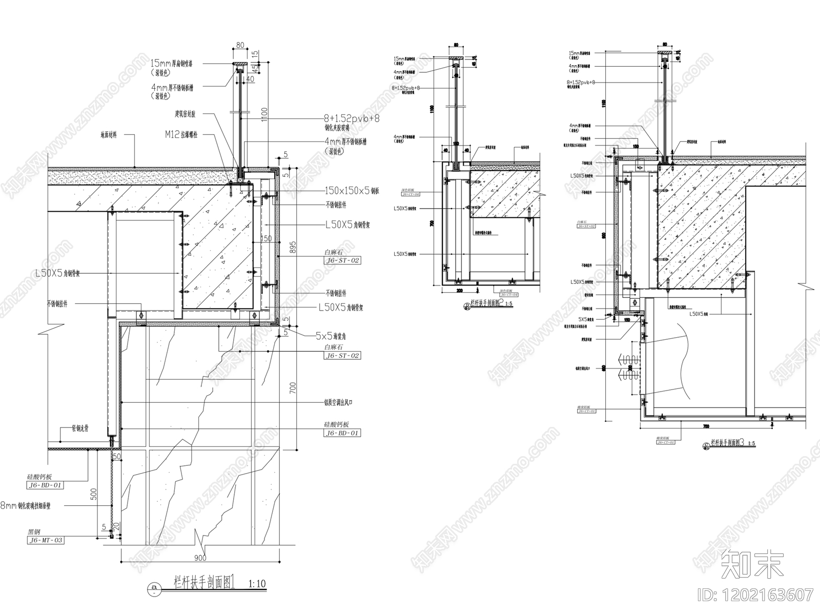
墙面节点 商场栏杆扶手大样 二层栏杆扶手大样 栏杆扶手大样图 栏杆与石材...
墙面节点CAD下载
ID: 1202163607
复制
上传作者
i512228
上传时间
2025-08-04
文件大小
0.22M
设计风格:
--
CAD版本:
CAD2012
包含文件:
CAD
授权
独家
立即下载
收藏
分享
举报
相关推荐
综合
墙面节点
背景墙节点
轻钢龙骨隔墙
壁龛节点
隔音墙节点