CAD频道
CAD图库
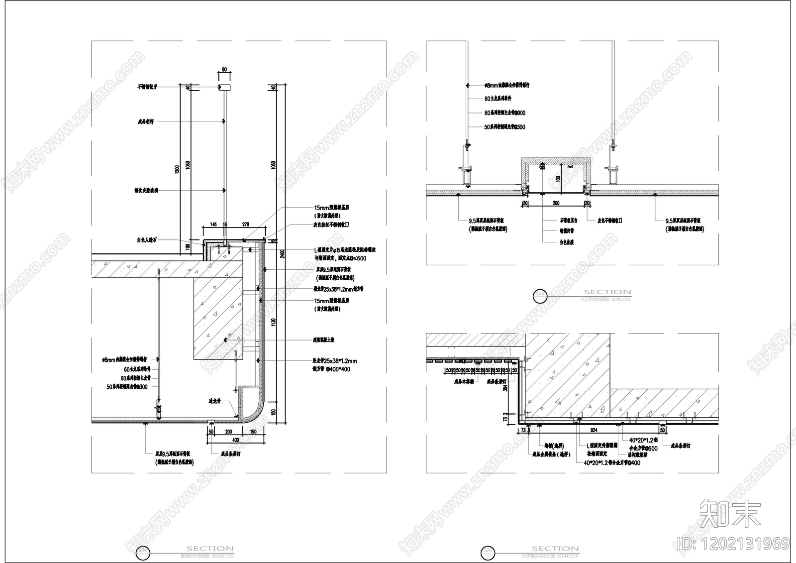
现代楼梯节点 中空栏杆节点大样 施工图
1/
3
Previous
Next
现代楼梯节点CAD下载
ID: 1202131969
复制
上传作者
小趴菜园
上传时间
2025-08-03
文件大小
5.95M
设计风格:
--
CAD版本:
CAD2004
包含文件:
CAD
授权
普通
立即下载
收藏
分享
举报
相关推荐
综合
节点详图
楼梯节点
吊顶节点
墙面节点
地面节点
门节点
其他节点详图
建筑工程节点
景观小品
水景