CAD频道
CAD图库
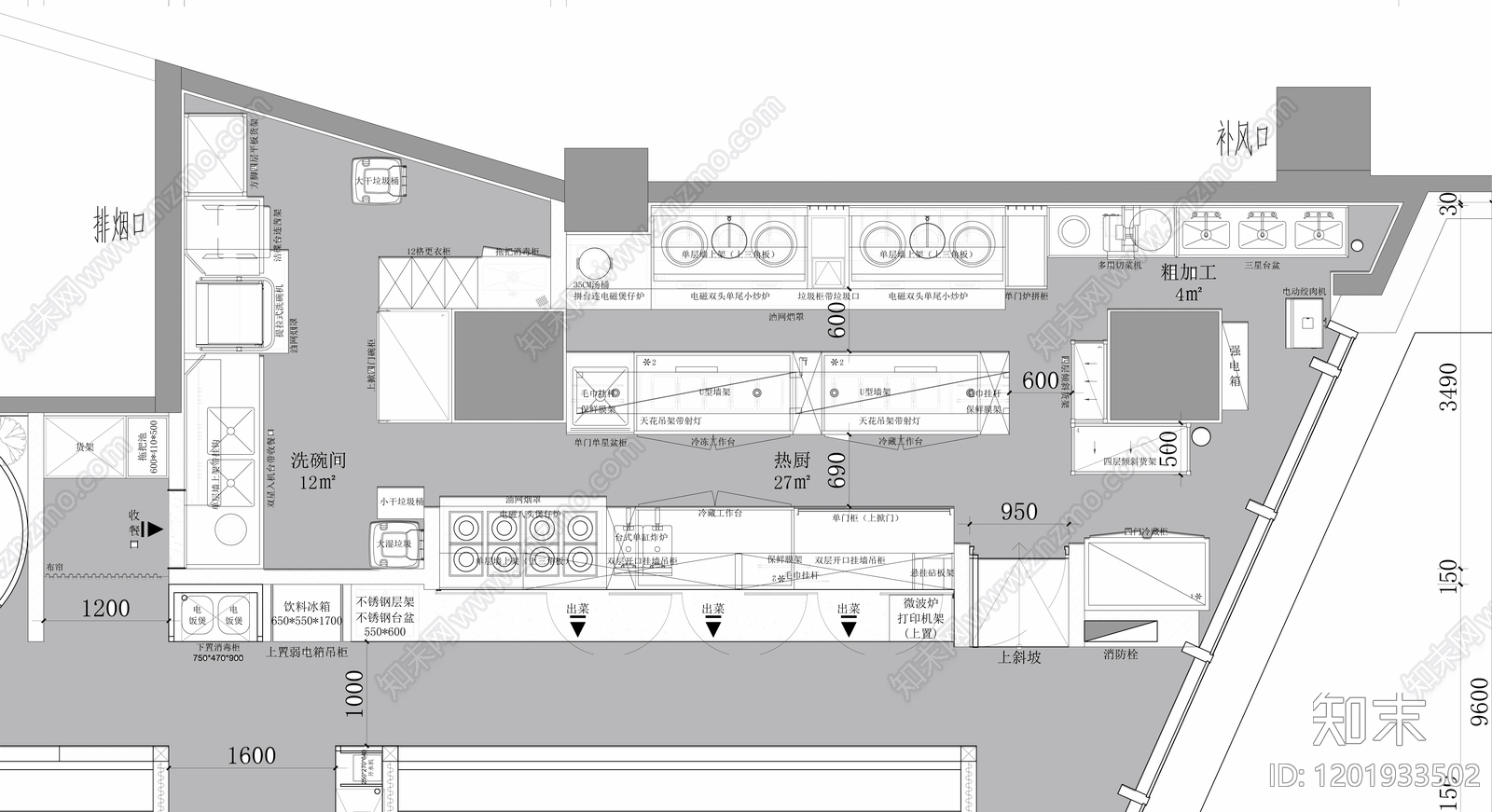
现代后厨 西餐厅厨房 火锅店厨房 幼儿园厨房 施工图
现代后厨CAD下载
ID: 1201933502
复制
上传作者
聆听小七
上传时间
2025-07-30
文件大小
0.5M
设计风格:
--
CAD版本:
CAD2005
包含文件:
CAD
授权
独家
立即下载
收藏
分享
举报
相关推荐
综合
餐饮空间
后厨
中餐厅
西餐厅
快餐店
自助餐厅
茶餐厅
其他餐饮空间
食堂
奶茶店