CAD频道
CAD图库
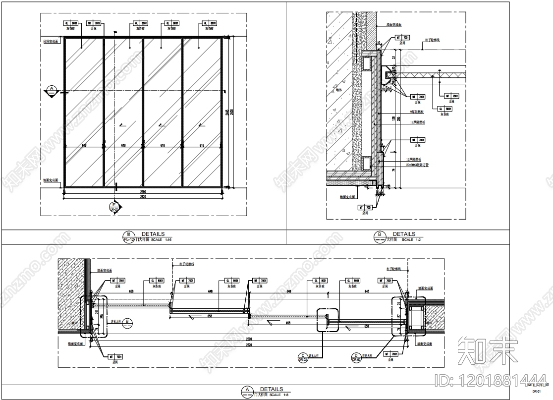
推拉门节点 联动推拉门 厨房门 玻璃推拉门 玻璃联动推拉门 联动门 施工...
1/
2
Previous
Next
推拉门节点CAD下载
ID: 1201881444
复制
上传作者
MUMU
上传时间
2025-07-29
文件大小
0.42M
设计风格:
--
CAD版本:
CAD2007
包含文件:
CAD
授权
独家
立即下载
收藏
分享
举报
相关推荐
综合
门节点
推拉门节点
入户门
铁艺大门
月洞门
玻璃门节点
隐形门节点
综合门节点