CAD频道
CAD图库
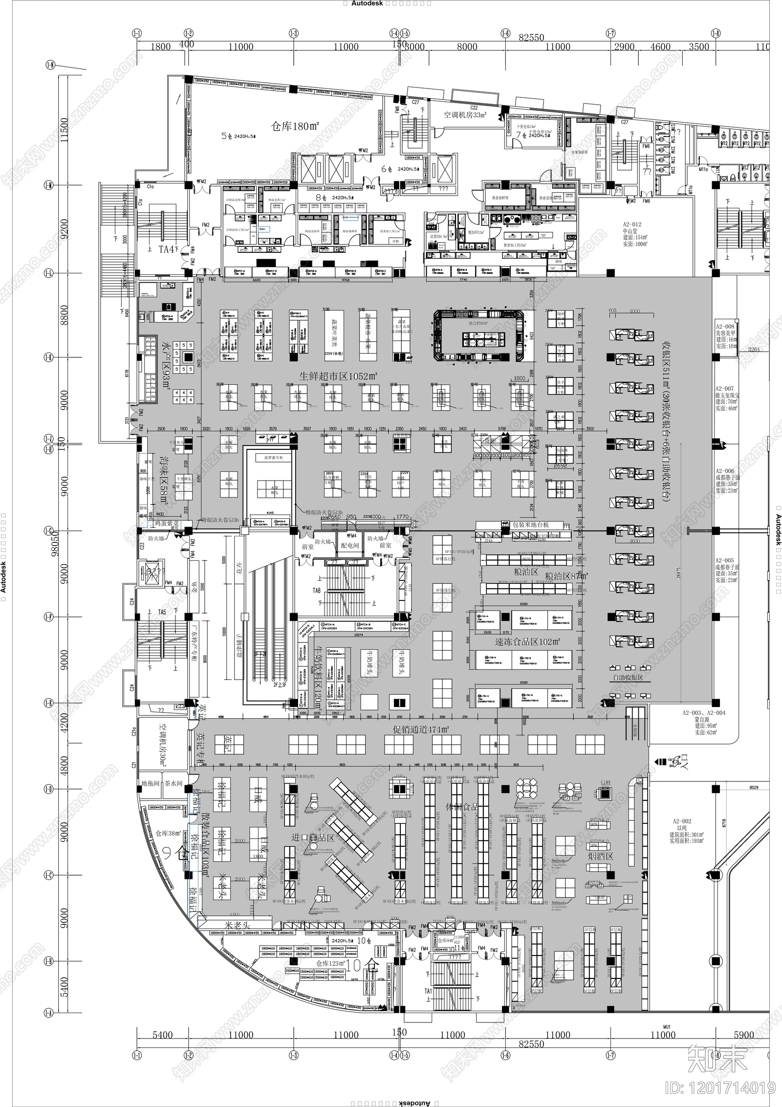
工装平面图 商场生鲜超市 平面布置图 施工图
工装平面图CAD下载
ID: 1201714019
复制
上传作者
智取怂猫河
上传时间
2025-07-25
文件大小
5.87M
设计风格:
--
CAD版本:
CAD2011
包含文件:
CAD
授权
独家
立即下载
收藏
分享
举报
相关推荐
综合
平面图
工装平面图
景观平面图
规划平面图
其他平面图
小区平面图