CAD频道
CAD图库
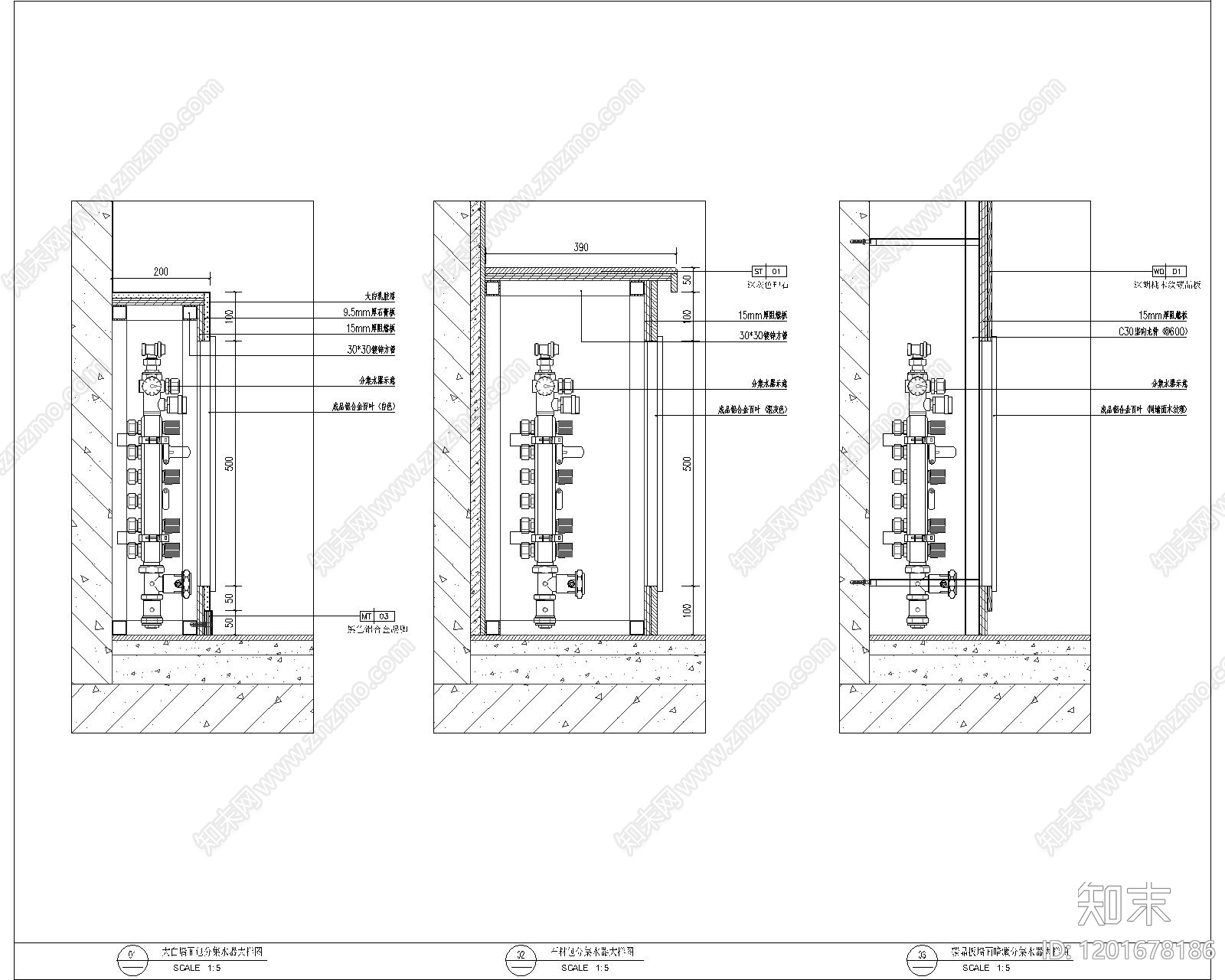
现代其他节点详图 地热分水器 包管道 暖气包 暖气罩 包分水器 施工图
现代其他节点详图CAD下载
ID: 1201678186
复制
上传作者
一棵树-
上传时间
2025-07-25
文件大小
1.44M
设计风格:
--
CAD版本:
CAD2008
包含文件:
CAD
授权
独家
立即下载
收藏
分享
举报
相关推荐
综合
节点详图
其他节点详图
吊顶节点
墙面节点
地面节点
门节点
建筑工程节点
景观小品
楼梯节点
水景