1/2


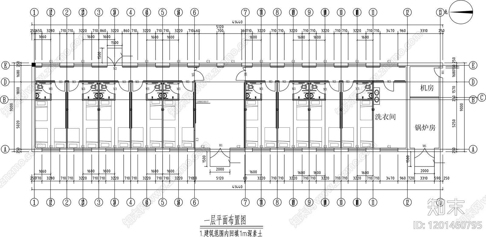
公寓建筑CAD下载
ID: 1201460795
复制
上传作者
贫尼要暴富(互粉)
贫尼要暴富(互粉)上传时间2025-07-20
文件大小0.14M
设计风格:--
CAD版本:CAD2018
包含文件:CAD
授权普通
立即下载
收藏
分享
举报
相关推荐
综合
居住建筑
公寓建筑
住宅楼建筑
四合院
别墅建筑
其他居住建筑
高层住宅
多层住宅
低层住宅
联排住宅


贫尼要暴富(互粉)上传时间2025-07-20
文件大小0.14M
设计风格:--
CAD版本:CAD2018
包含文件:CAD
授权普通