CAD频道
CAD图库
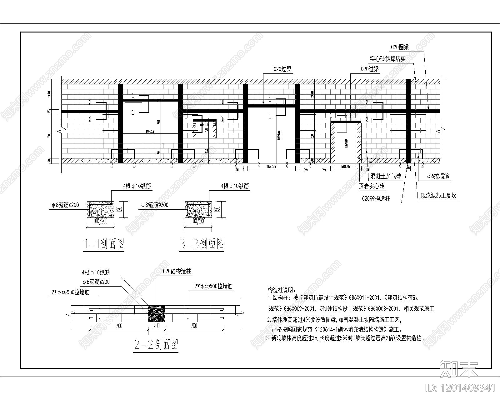
柱子节点 构造柱 过梁 圈梁 门窗过梁 施工图
1/
2
Previous
Next
柱子节点CAD下载
ID: 1201409341
复制
上传作者
故杳杳杳
上传时间
2025-07-18
文件大小
0.12M
设计风格:
--
CAD版本:
CAD2011
包含文件:
CAD
授权
独家
立即下载
收藏
分享
举报
相关推荐
综合
建筑工程节点
柱子节点
屋顶
吊装节点
斗拱节点
楼板节点
女儿墙节点
塔吊节点
天窗节点
屋檐节点